This item is archived/sold and no longer available for bidding.





































Antwerpsestraat 127, 4611AE Bergen op zoom, Netherlands
LET OP: AANVRAGEN VOOR EEN BEZICHTIGING BIJ VOORKEUR VIA FUNDA/MAIL.
INTRODUCTIE
Dit appartement in het bourgondisch Bergen op Zoom is de ideale keuze voor (her)starters die op zoek zijn naar een eigen stekje waar ze zich direct thuis kunnen voelen.
De sfeer, ligging en indeling maken dit tot een geweldige kans om jouw eerste stap op de woningmarkt te zetten.
Met maar liefst 3 slaapkamers en 2 balkons heb je aan ruimte geen gebrek. Gelegen aan de rand van het historisch centrum met o.a een supermarkt om de hoek en op loopafstand van alle voorzieningen. Wie wil dat nou niet?
Mis deze kans niet en maak snel een afspraak voor een bezichtiging van dit charmante appartement!
INDELING
Begane grond;
Als je via de entree binnenkomt tref je hier het bellentableau, de brievenbussen en het trappenhuis.
Souterrain;
Als je vanuit de entree de trap naar beneden neemt, kom je bij de berging met ruimte voor je fiets met daarnaast voldoende plaats voor o.a de kerstspullen en koffer.
Derde verdieping;
Via de trapopgang bij de entree bereik je de derde verdieping waar de ingang van het appartement te vinden is.
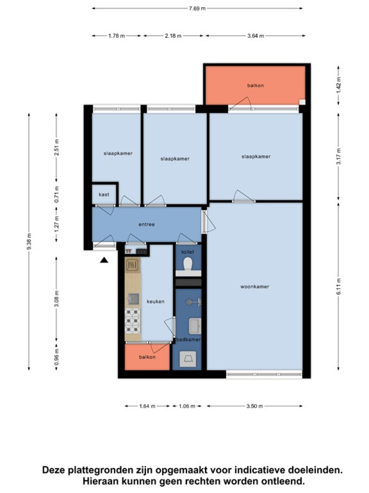
Je komt binnen in de hal. Deze is voorzien van stucwerk wanden en plafond, intercom en een garderobekast met opstelplaats voor de boiler.
Vanuit de hal zijn, keuken, toilet, woonkamer en slaapkamers te bereiken.
De dichte keuken is recht opgesteld en voorzien van inbouwapparatuur; koelkast, gaskookplaat, combi oven/magnetron en een afzuigkap. De achterwand van de keuken is betegeld, de rest van de wanden en het plafond zijn afgewerkt met stucwerk en de vloer met laminaat. Vanuit de keuken is zowel het balkon aan de voorkant en de badkamer te bereiken.
De badkamer is betegeld en praktisch ingedeeld met een inloopdouche, wastafelmeubel en wasmachine aansluiting.
Het moderne toilet met wandcloset is betegeld.
De woonkamer (gelegen aan de voorzijde) is een aangename ruimte door de ruime opzet en grote raampartij met rolluiken. Zowel de wanden als plafonds zijn afgewerkt met stucwerk en ook hier ligt een laminaatvloer.
De hoofdslaapkamer (ca. 12m²) ligt rechts achter en vanuit hier bereik je het balkon aan de achterzijde. De wanden en plafonds zijn hier ook met stucwerk afgewerkt. De vloer is voorzien van tapijt.
De slaapkamer midden achter (ca. 7m²) en links achter (ca. 5m²) hebben een laminaatvloer en evenals de andere ruimtes zijn de wanden en plafonds voorzien van stucwerk. De kleinste kamer is momenteel in gebruik als gym maar kan ook bijvoorbeeld ook prima gebruikt worden als werkruimte of kleedkamer/inloopkast.
BIJZONDERHEDEN
• 4-kamerappartement;
• Instapklaar;
• Bouwjaar 1968;
• 3 slaapkamers;
• Dichte moderne keuken;
• Badkamer met inloopdouche;
• Ruime lichte woonkamer;
• Aan de rand van het centrum;
• Energielabel E (gedateerd);
• Dubbel glas;
• Blokverwarming;
• Gezonde VvE;
• VvE kosten €325,- (inclusief voorschot stookkosten en water);
• Voldoende parkeergelegenheid.
BEZICHTIGINGEN EN BIEDINGEN
De bezichtigingen vinden op afspraak plaats.
Bieden en wonen verkoopt deze woning via een transparant biedproces.
Alle biedingen van kandidaat-kopers worden automatisch vastgelegd in een geanonimiseerd biedlogboek.
Het biedlogboek bevat alle biedingen met tijdstip van ontvangst en eventuele voorbehouden.
Tijdens de bezichtiging zullen wij je uitgebreid informeren over de werking van onze biedingsprocedure.
Op de Bieden en Wonen website kunt je additionele informatie inzien of downloaden. Informatie over het biedproces wordt getoond op de website van Biedenenwonen.nl
Deze tekst is door ons kantoor met de meeste zorg samengesteld aan de hand van de door de verkoper aan ons ter hand gestelde gegevens en tekeningen. Derhalve kunnen wij geen garanties verstrekken, noch kunnen wij op enigerlei wijze eventuele aansprakelijkheid voor deze gegevens aanvaarden.