













































Bergweg 7, 3904HL Veenendaal, Netherlands
Ter informatie hebben wij ook een kantoor van Bieden en Wonen in Veenendaal welke hier ook actief is omtrent de service aangaande deze mooie woning.
Op één van de mooiste plekjes van Veenendaal, nabij de bossen van de Utrechtse heuvelrug, staat
deze mooie vrijstaande woning te koop. Deze prachtige woning heeft de charme van een
dertigerjaren woning en heeft een verrassende indeling.
De riante woonkamer leent zich voor gezellige avonden rond de openhaard. De luxe keuken heeft ruimte voor een zitgedeelte, dit plekje ligt heerlijk aan de tuin waardoor in alle seizoenen genoten kan worden van de zon.
Op de eerste verdieping bevinden zich 3 slaapkamers, een badkamer en apart toilet. Bijzonder aan deze veelzijdige woning is het compleet multifunctionele bijgebouw waar zich de garage, bijkeuken en twee lichte (werk/speel/slaap) kamers bevinden. Tevens is het bijgebouw bijzonder geschikt is voor een praktijk aan huis, kangoeroe woning, wellness, fitness of hobbykamer.
Tel daarbij op dat er dit huis een bijzonder diepe en groene tuin heeft die een zeer gunstig ligging heeft waardoor je al vanaf maart tot oktober heerlijk in de zon kunt genieten.
De Bergweg is een van de oudste straten van Veenendaal met mooie, statige woningen.
De karakteristieke bomen en grote voortuinen geven de straat een groene uitstraling. Het bos
(Prattenburg) is op enkele minuten lopen en is de start van diverse wandel en mountainbike routes.
Binnen enkele fietsminuten ligt het centrum van Veenendaal met theater, restaurants, terrassen en
vele bekende winkelketens en boetieks. Nog dichterbij liggen al een aantal supermarkten, de markt
op vrijdag en het station die rechtstreekse verbinding heeft met Utrecht, Amsterdam en Rhenen.
Gelegen nabij de rondweg rijdt u binnen 10 minuten op de A12 of binnen 5 minuten op de N233. In
deze kinderrijke straat is het fijn, met meerdere scholen, speeltuinen en verenigingen in de buurt.
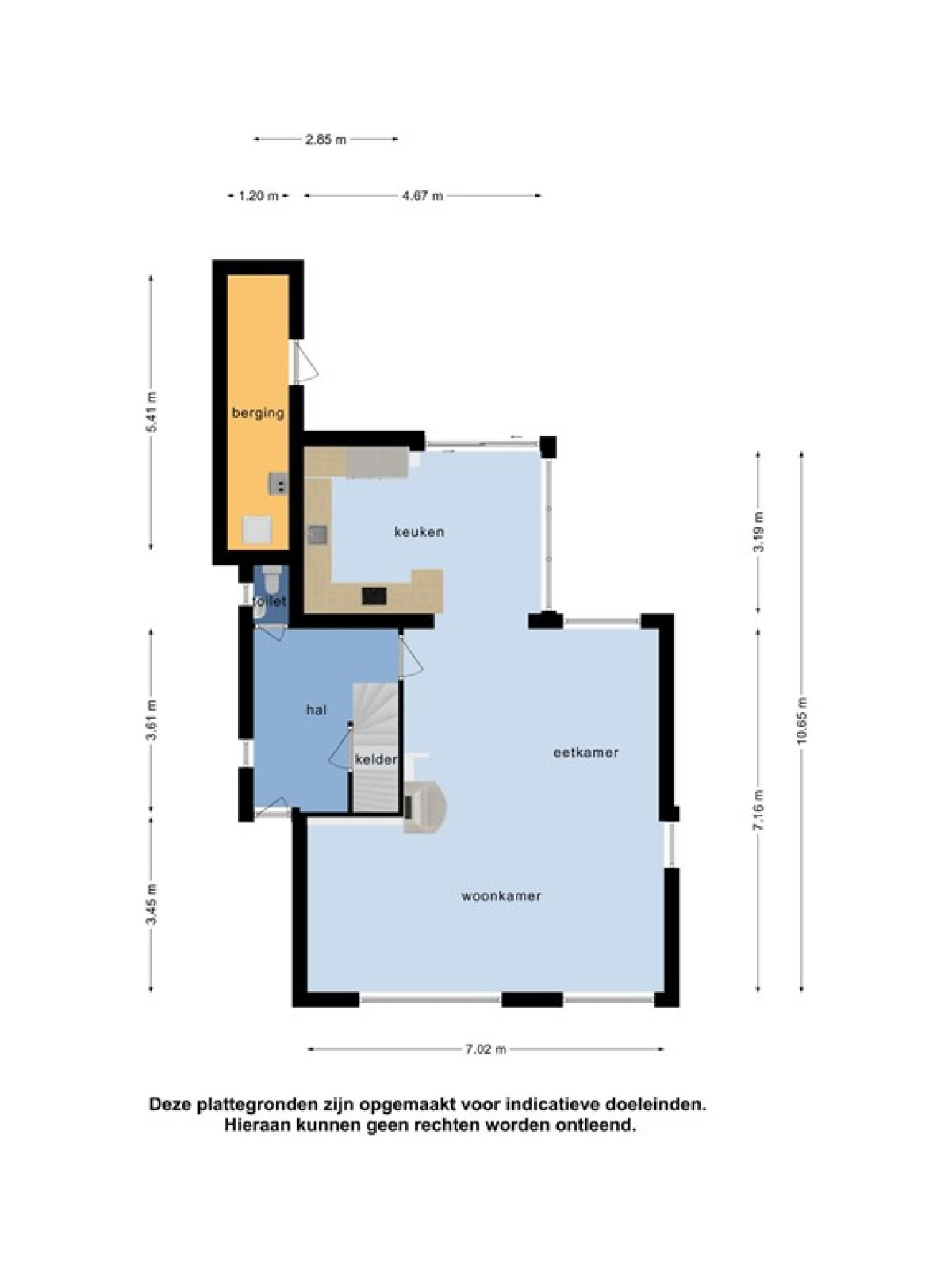
Begane grond
U komt binnen in een ruime entree hal waar het contrast tussen de visgraat vloer, witte muren en
zwarte elementen direct luxe aandoen. Hier vind je het toilet, toegang tot de (wijn)kelder, de trap
naar boven en de deur naar de living.
De riante en lichte woonkamer is tevens voorzien van diezelfde luxe visgraat vloer en hier valt de
imposante zwarte design schouw direct op. Deze is in het midden van de ruimte op een hoek
geplaatst waardoor hij niet alleen optimale warmte verstrekt, ook is hij vanuit elke hoek in de kamer
de sfeer maker. De gehele verdieping is tevens voorzien van vloerverwarming.
Voor de keuken is er een heel deel aangebouwd aan de achterkant van het huis. Voorzien van
luxe en van alle gemakken voorzien. Zo vind je hier een inductiekookplaat, afzuigkap, vaatwasser, heteluchtoven en
een koel/vriescombinatie.
Eerste verdieping
Bovenaan de vaste trap kom je uit op de overloop met op de vloer een
laagpolig, grijs tapijt die tevens terugkomt in alle drie de slaapkamers. Hier vind je aan je rechterhand
als eerste een tweede toilet en de eerste slaapkamer.
Laatstgenoemde is ruim 7 m2 aan vloeroppervlak, wat het
toch op z’n minst een riante kinderkamer zou maken.
Daartegen over bevindt zich de tweede en tevens grootste slaapkamer met hoog plafond. Deze is aan
de voorzijde van het huis geplaatst en kijkt daardoor ook uit over de buurt.
Voordat we aan het einde van de overloop bij kamer nummer 3 uitkomen, passeren we eerst de
badkamer aan onze linkerhand. Je kunt hier gebruik maken van de riante whirlpool, van de inloopdouche en uiteraard een wastafel met daarboven een grote spiegel.
Als laatste, de derde slaapkamer. Ook voorzien van hetzelfde nette tapijt beschikt deze kamer als
enige over ramen die zowel op de voor als achterzijde staan voor optimale lichtinval. Deze zit qua
formaat tussen de andere twee in waardoor je hier ook alle kanten mee op kunt. Van de hoogte is
optimaal gebruik gemaakt door boven de gehele badkamer een vide te realiseren voor optimale
bergruimte of als speelzolder.
Buitenruimte
Aan het huis tref je de eerste bijkeuken waar op dit moment een handige was en droogruimte is
gesitueerd met de CV ketel voor het huis.
Achter het huis, aan de tuin vind je nog een compleet bijgebouw inclusief overkapping, groot genoeg
dat er een auto onder past. Het bijgebouw begint als garage met automatische deur op
afstandsbediening. En biedt daarna nog een tweede bijkeuken voor een extra koel/vrieskast,
bergruimte en heeft een eigen CV ketel voor het bijgebouw. Naast gelegen tref je twee extra
woon/slaap/speelkamer waar je niet alleen een hoop ruimte hebt, ook zit je er heerlijk zonnig dankzij
een groot dakraam en ramen veelal op het zuiden. Dit gebouw leent zich uitstekend voor praktijk aan
huis of kangoeroewoning.
In de prachtige diepe tuin loop je zo het huis of het bijgebouw in. Er is altijd keuze voor
zon of op een warme dag de koelte van de schaduw door de diepe tuin die tevens is voorzien van
verlichting, elektra en een tuin beregeningssysteem.
Bijzonderheden
-riante, instapklare vrijstaande woning
-diepe tuin met zonnige ligging
-bijgebouw maakt bedrijf aan huis mogelijk
-garage
-3 slaapkamers
-luxe keuken
-visgraat vloer op begane grond
-vloerverwarming
-veel en lichte ruimte
-kindvriendelijke omgeving
-op loopafstand van supermarkten, station, winkelcentrum en uitvalswegen
Verkoopvoorwaarden:
De algemene verkoop voorwaarden zijn van toepassing op deze kavel. Deze vindt u tevens terug op de website van Bieden & Wonen.
Zorgvuldig samengesteld:
Deze advertentietekst is door ons kantoor met de meeste zorg samengesteld aan de hand van de door de verkoper aan ons ter hand gestelde gegevens en tekeningen. Derhalve kunnen wij geen garanties verstrekken, noch kunnen wij op enigerlei wijze eventuele aansprakelijkheid voor deze gegevens aanvaarden.
NEN-2580 normering:
De gepubliceerde oppervlakte en metrages van deze woning zijn door een onafhankelijke partij samengesteld in de vorm van een meetrapport, conform de NEN 2580 normering voor oppervlakte metingen.