This item is archived/sold and no longer available for bidding.














































The measurement report in accordance with NEN 2580 provides the surface area and volume of a home or building based on a fixed Dutch standard. This ensures clear and comparable measurements.
The title deed from the Dutch Land Registry (Kadaster) is an official document that proves who the legal owner is of a piece of real estate (such as a house, plot of land, or building) in the Netherlands.
"Part B includes questions about the Homeowners Association (HOA), service charges, maintenance, legal matters, and any special arrangements. The owner completes this truthfully.
The Inventory of Fixtures and Fittings lists which items stay or go with the property sale. It ensures buyer and seller agree on what’s included.
This document is received by the owner of the property from the municipality for the payment of specific taxes.
Burgemeester Meslaan 109, 4003CB Tiel, Netherlands
Burgemeester Meslaan 109, Tiel
LET OP: AANVRAGEN VOOR EEN BEZICHTIGING GRAAG PER MAIL, DE VERKOPEND MAKELAAR VAN BIEDEN EN WONEN GELDERSE VALLEI NEEMT DAN CONTACT MET U OP OM EEN AFSPRAAK VOOR EEN BEZICHTIGING IN TE PLANNEN.
Bieden en wonen verkoopt deze woning via een transparant biedproces.
NB. De getoonde vraagprijs is een vanaf prijs.
Prachtige Twee-onder-een-kap woning met 145 m2 woonoppervlakte gelegen aan de populaire Burgemeester Meslaan in Tiel
In één van de mooiste straten van Tiel, ligt deze prachtig gerenoveerde en uitgebouwde woning met een hoog afwerkingsniveau. De ligging is ideaal, met de nabijheid van A15, natuur en recreatieplas voor ontspanning en vermaak.
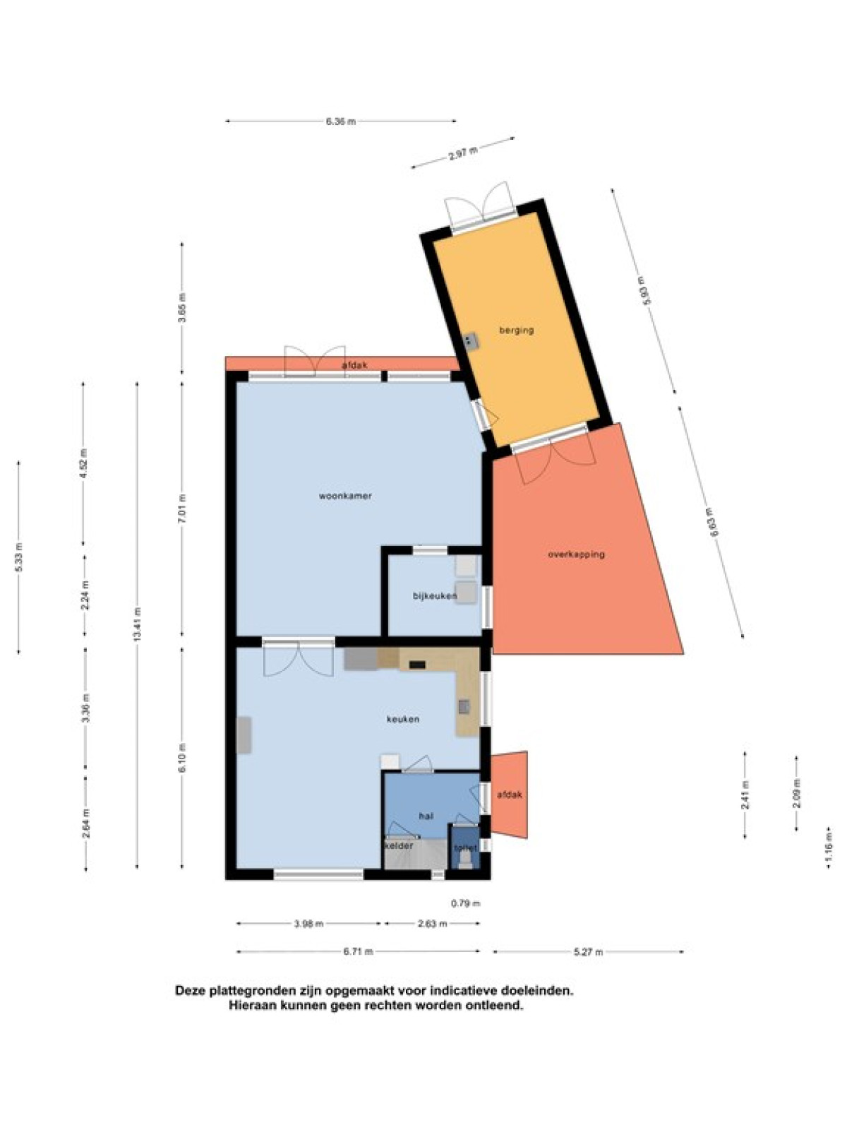
Indeling:
Bij binnenkomst word je verwelkomd in de hal, die leidt naar een luxe toilet, trapopgang naar kelder en eerste verdieping. De luxe woonkeuken biedt toegang tot de sfeervolle woonkamer met bijkeuken en openslaande deuren naar de riante achtertuin met veranda en extra bergruimte.
Op de eerste verdieping bevindt zich een ruime hal die leidt naar de luxe badkamer, separaat toilet en twee ruime slaapkamers. Via de trap bereik je de zolder, waar een hal toegang biedt tot een ruime slaapkamer met nieuwe dakkapel.
Extra's en Buitenruimte
De woning is voorzien van airconditioning in de woon/slaapruimtes.
De keuken is voorzien van luxe inbouwapparatuur.
Buiten zijn er een ruime oprit met plek voor maar liefst 5 auto's en carport, een grote garage, en een luxe achtertuin met veranda.
Met maar liefst 23 zonnepanelen en uitstekende isolatie, is deze woning zeer energiezuinig en duurzaam.
Wonen in Tiel
De woning is gelegen in de geliefde Burgemeester Meslaan, ideaal voor doorstromers en gezinnen die op zoek zijn naar een ruime en luxe woning op een gunstige locatie. Kom en ontdek de charme en het comfort van deze prachtige woning aan de Burgemeester Meslaan 109 in Tiel. Een unieke kans om te genieten van luxe en comfort in een schitterende omgeving.
Bezichtigingen:
De bezichtigingen vinden plaats op afspraak.
Tijdens de bezichtiging zullen wij u ook uitgebreid informeren over de werking van ons Online-biedplatform en de bijbehorende aandachtspunten voor deelname aan de biedronde.
Op de Bieden en Wonen website kunt u additionele informatie inzien of downloaden.
Informatie over het biedproces en eventuele bijkomende kosten wordt getoond op de website van Biedenenwonen.nl
Deze tekst is door ons kantoor met de meeste zorg samengesteld aan de hand van de door de verkoper aan ons ter hand gestelde gegevens. Derhalve kunnen wij geen garanties verstrekken, noch kunnen wij op enigerlei wijze eventuele aansprakelijkheid voor deze gegevens aanvaarden. Wij adviseren u om contact met ons op te nemen bij interesse in deze woning of u door een eigen makelaar te laten bijstaan.