This item is archived/sold and no longer available for bidding.



























































Hertesprong 36, 4874JB Etten-leur, Netherlands
LET OP: AANVRAGEN VOOR EEN BEZICHTIGING GRAAG VIA FUNDA/MAIL.
INTRODUCTIE
Ben je op zoek naar een ruime uitstekend onderhouden en instapklare twee-onder-een-kapwoning in een fijne buurt? Hertesprong 36 in Etten-Leur heeft alles wat je zoekt! Met energielabel C, een woonoppervlakte van 138 m² en een totale vloeroppervlakte van maar liefst 270 m² biedt deze woning volop ruimte en comfort. De highlights? Een grote woonkamer met open haard, een eetkamer met lichtkoepel, een royale open keuken, 3 slaapkamers, een aangename badkamer en een multifunctionele ruimte met eigen ingang en keukenblok.
De ligging is top: rustig, met uitzicht op groen en geen doorgaand verkeer. De lange oprit biedt plek voor meerdere auto’s, en je hebt ook nog eens een garage én een riante overkapping met lichtkoepels in de achtertuin.
Etten-Leur is een gezellige en complete woonplaats, met alle voorzieningen binnen handbereik. De woning ligt in een rustige en groene buurt zonder doorgaand verkeer, ideaal voor gezinnen of mensen die van rust houden. In de nabije omgeving vind je verschillende parken, sportverenigingen, scholen en winkelcentra. Bovendien ben je binnen no-time op de uitvalswegen richting Breda en Roosendaal, of met het openbaar vervoer in de grote steden. Etten-Leur heeft een dorpse sfeer, maar biedt alle gemakken van de stad.
Nieuwsgierig geworden? Plan snel een bezichtiging en ontdek zelf alle mogelijkheden die deze woning jou te bieden heeft!
INDELING
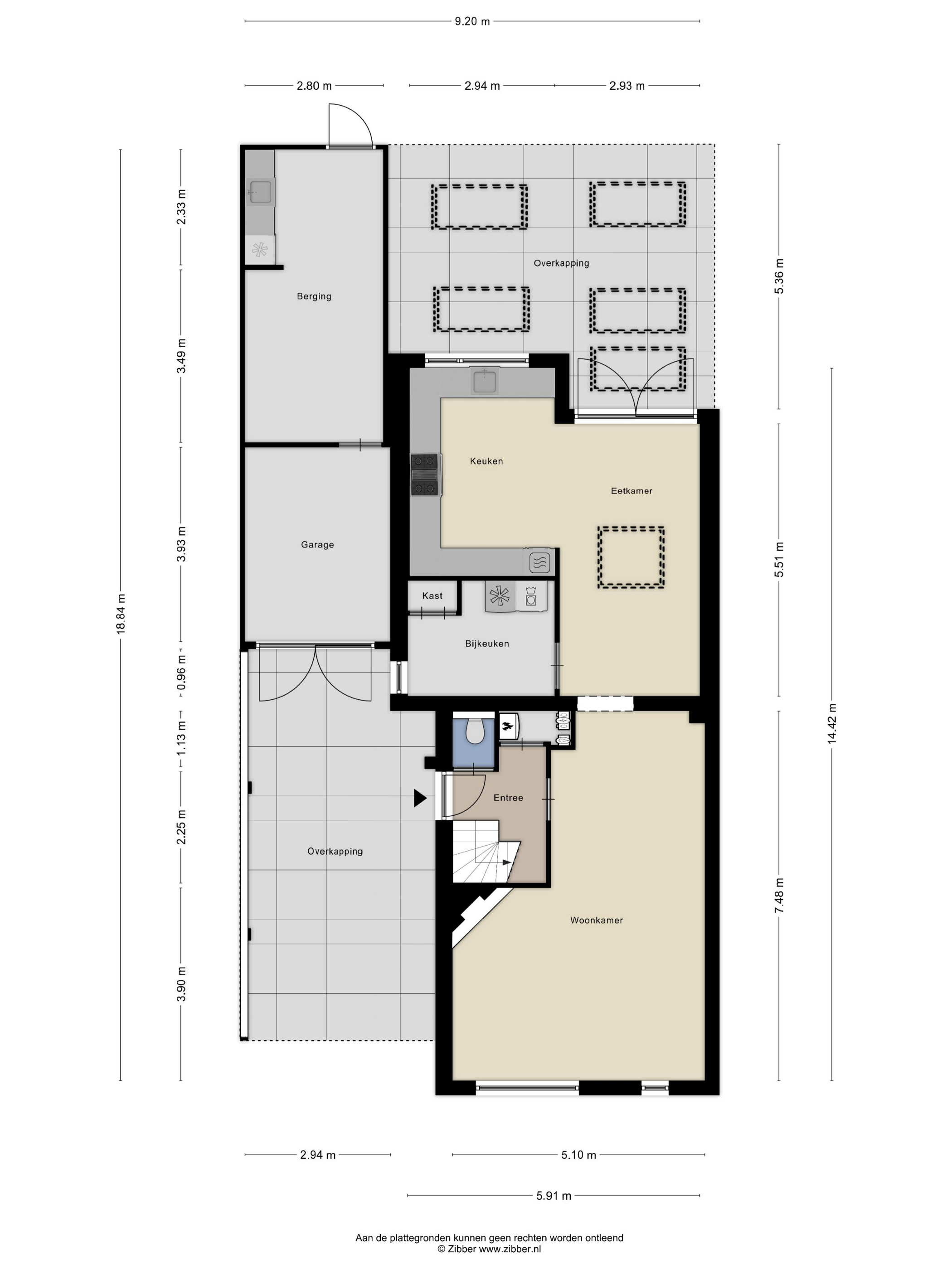
Begane grond;
Bij binnenkomst in de ruime hal tref je direct een aantal handige zaken: de meterkast met de CV ketel en opbergruimte, een toiletruimte en een stijlvolle open houten trap naar de eerste verdieping. Via de hal bereik je tevens de woonkamer.
De woonkamer is heerlijk ruim en licht en voorzien van een houten vloer en een gezellige open haard die zorgt voor zowel letterlijk als figuurlijk een warme sfeer.
Aangrenzend vind je de eetkamer met openslaande deuren naar de tuin en de moderne en riante open keuken. Deze U-vormige keuken is van alle gemakken voorzien, met een prachtig gasfornuis met oven, magnetron, koelkast, vaatwasser en veel werk-en opbergruimte.
Zowel de keuken als de eetkamer, hal en bijkeuken zijn voorzien van een tegelvloer met vloerverwarming.
De bijkeuken heeft een aansluiting voor de wasmachine met daarnaast nog voldoende ruimte voor bijvoorbeeld een kast, wasrek en extra koelkast.
Zowel vanuit de garage als achtertuin is een extra ruimte van ruim 16m2 te bereiken De extra ruimte is voorzien van een tegelvloer en keukenblok met zowel koud als warm water. Deze ruimte is ideaal te gebruiken voor verschillende doeleinden, zoals; werk/praktijk aan huis, speelkamer, mancave of extra slaapkamer.
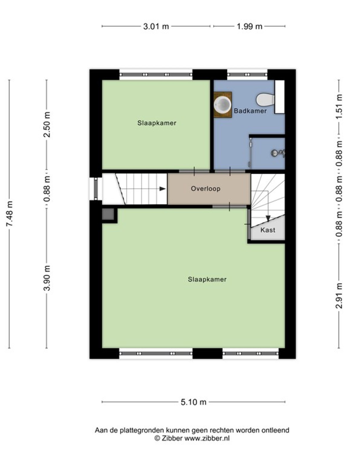
Eerste verdieping;
Op de eerste verdieping vind je twee slaapkamers, waarvan één royale waar je met gemak twee kamers van kunt maken.
De slaapkamers en de overloop zijn voorzien van een mooie houten vloer.
De badkamer is volledig betegeld en uitgerust met een inloopdouche, wastafelmeubel, toilet, designradiator en extra bergruimte.
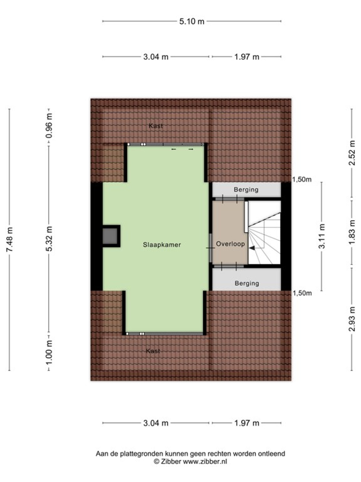
Tweede verdieping;
De zolder is verrassend ruim dankzij de dakkapellen aan beide zijden.
Hier bevindt zich een derde slaapkamer met laminaatvloer.
Op de voorzolder ligt een houten vloer en achter de louvredeurtjes is extra opbergruimte te vinden.
Buitenruimte en bijgebouwen;
De achtertuin is ruim, heeft een achterom en een grote overkapping met lichtkoepels. Perfect om het hele jaar door van je tuin te genieten.
De lange oprit biedt plek voor 2 tot 3 auto’s en dankzij de grote carport staat je auto lekker droog.
Via de oprit en de multifunctionele ruimte is de garage met loopdeur te bereiken.
BIJZONDERHEDEN
Royale twee-onder-een kapwoning;
Goed onderhouden en instapklaar;
Bouwjaar 1983;
Rustige groene kindvriendelijke woonwijk;
Grote woonkamer met open haard en houten vloer;
Ruime eetkamer met lichtkoepel;
Riante luxe open keuken;
Drie (mogelijk vier) ruime slaapkamers;
Zolder met aan weerszijden een dakkapel;
Extra multifunctionele ruimte met keukenblok;
Garage en carport met lange oprit;
Achtertuin met achterom en overkapping;
Rustige ligging met uitzicht op groen, geen doorgaand verkeer;
Energielabel C;
Vloerverwarming in eetkamer, keuken, bijkeuken en hal;
rolluiken.
BEZICHTIGINGEN EN BIEDINGEN:
De bezichtigingen vinden op afspraak plaats.
Bieden en wonen verkoopt deze woning via een transparant biedproces.
Alle biedingen van kandidaat-kopers worden automatisch vastgelegd in een geanonimiseerd
biedlogboek. Het biedlogboek bevat alle biedingen met tijdstip van ontvangst en eventuele
voorbehouden.
Tijdens de bezichtiging zullen wij je uitgebreid informeren over de werking van onze
biedingsprocedure.
Op de Bieden en Wonen website kun je additionele informatie inzien of downloaden.
Informatie over het biedproces wordt getoond op de website van Biedenenwonen.nl
Deze tekst is door ons kantoor met de meeste zorg samengesteld aan de hand van de door
de verkoper aan ons ter hand gestelde gegevens en tekeningen. Derhalve kunnen wij geen
garanties verstrekken, noch kunnen wij op enigerlei wijze eventuele aansprakelijkheid voor
deze gegevens aanvaarden.