This item is archived/sold and no longer available for bidding.



































































Hof van de Paltz 79, 4625EP Bergen op zoom, Netherlands
INTRODUCTIE
Welkom bij dit plaatje aan Hof van de Palz 79 in Bergen op Zoom! Deze veelzijdige drive-in woning biedt 134 m² woonoppervlakte, een inpandige garage van 20 m², en meerdere buitenruimtes: in de achtertuin een bijzonder sfeervolle veranda van 18 m², een dakterras van bijna 32 m² en dan ook nog eens een balkon aan de voorzijde. Bovendien zijn het dakterras en de tuin op het zuidwesten gelegen, zodat je de hele dag kunt genieten van de zon. Dit huis heeft je altijd een plekje in de zon of schaduw te bieden! Door de twee woonkamers, twee badkamers en de mogelijkheid om van de garage een extra slaapkamer te maken, is dit huis perfect voor dubbele bewoning, levensloopbestendig wonen of gebruik als mantelzorgwoning. Maar er zijn ook zeker mogelijkheden voor werk aan huis.
De woning ligt aan een woonerf in een kindvriendelijke wijk, tussen de Antwerpsestraatweg en de nieuwe wijk De Markiezaten. Omdat hier alleen bestemmingsverkeer komt, kunnen kinderen veilig buiten spelen. Voor de dagelijkse boodschappen is de Lidle op korte loopafstand, en overige voorzieningen vind je binnen enkele minuten op de Bergse Plaat of aan de Antwerpsestraatweg.
Ook op sportief en recreatief gebied zit je hier goed. Sportpark Rozenoord en het natuurgebied De Markiezaten liggen op loopafstand.
Het centrum van Bergen op Zoom bereik je binnen 10 minuten fietsen. Moet je buiten de stad zijn? Binnen 5 minuten zit je op de snelweg richting Rotterdam, Antwerpen of Breda. Voor de deur kun je vrij parkeren.
Ben jij net zo onder de indruk als wij? Maak dan snel een afspraak voor een bezichtiging. We kunnen niet wachten om te laten zien welke mogelijkheden dit huis jou te bieden heeft!
INDELING
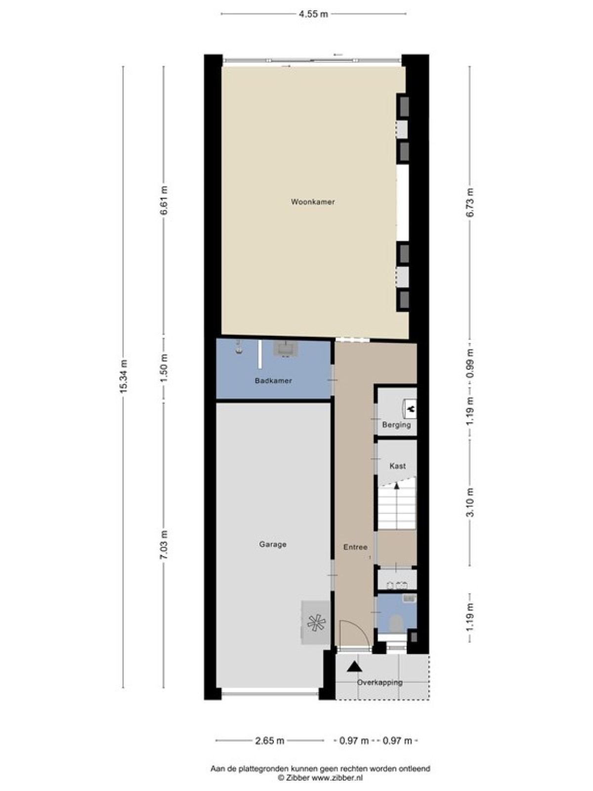
Begane grond;
Vanuit voor de voortuin is zowel de garage als voordeur te bereiken.
Via de voordeur kom je binnen in de hal. Hier vind je de meterkast, een trapkast, de toiletruimte en een berging met de CV-ketel en wasmachine-aansluiting.
Vanuit de hal heb je toegang tot de badkamer op de begane grond, voorzien van een wastafelmeubel en inloopdouche.
Vanuit de hal stap je ook binnen in de ruime uitgebouwde woonkamer (2018) met een schuifpui over de volledige breedte van de woonkamer en uitzicht op de sfeervolle achtertuin.
Eerste verdieping;
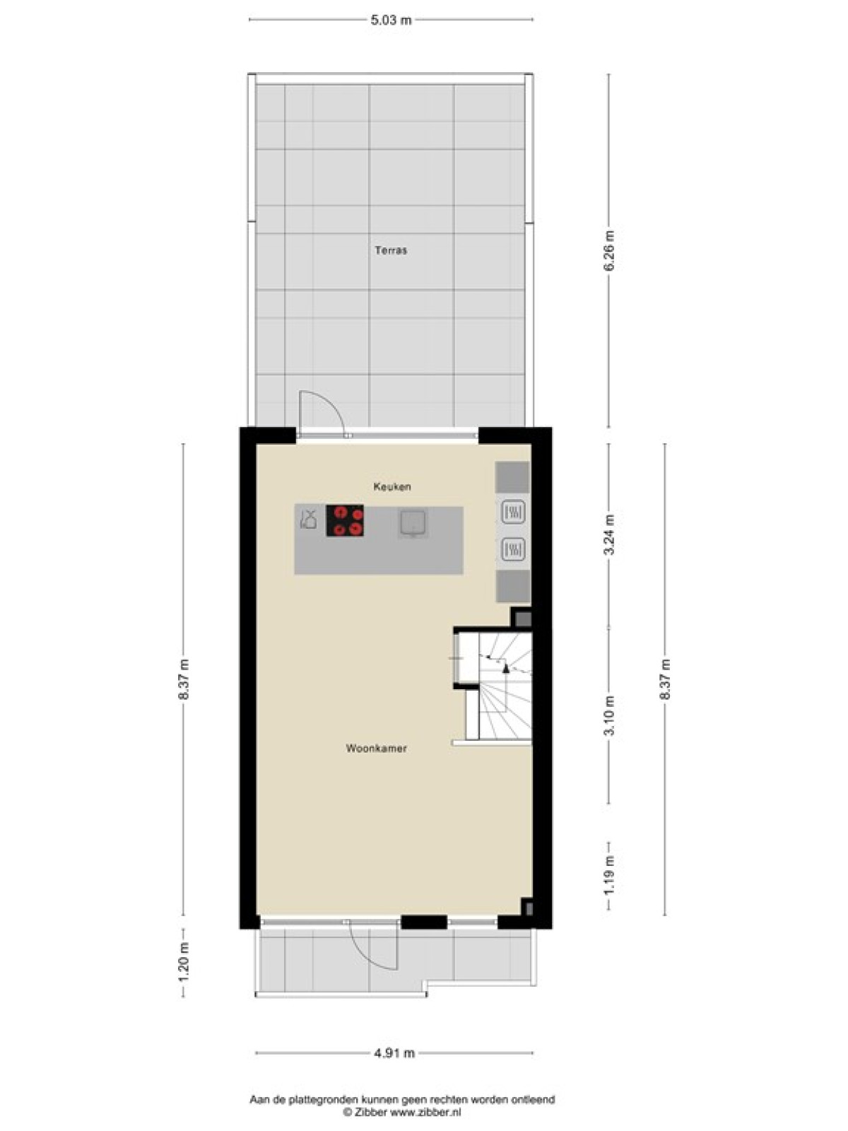
Als je de eerste verdieping binnen stapt word je compleet verrast met nog een prachtige living. Je vindt hier ook de ruim opgezette keuken (2023). Deze keuken is uitgerust met een kookeiland en diverse inbouwapparatuur zoals een vaatwasser, oven, magnetron, koffiezetapparaat en koelkast. Hier is meer dan genoeg ruimte voor een grote eettafel en een comfortabel zitgedeelte. Zie jij jezelf hier al uitgebreid tafelen met vrienden/familie? Vanuit de keuken heb je toegang tot het royale dak, ook een perfecte plek om in de zomer van de zon te genieten en na te tafelen. Aan de voorzijde van de woning bevindt zich nog een balkon, zodat je altijd kunt kiezen tussen zon of schaduw.
Tweede verdieping;
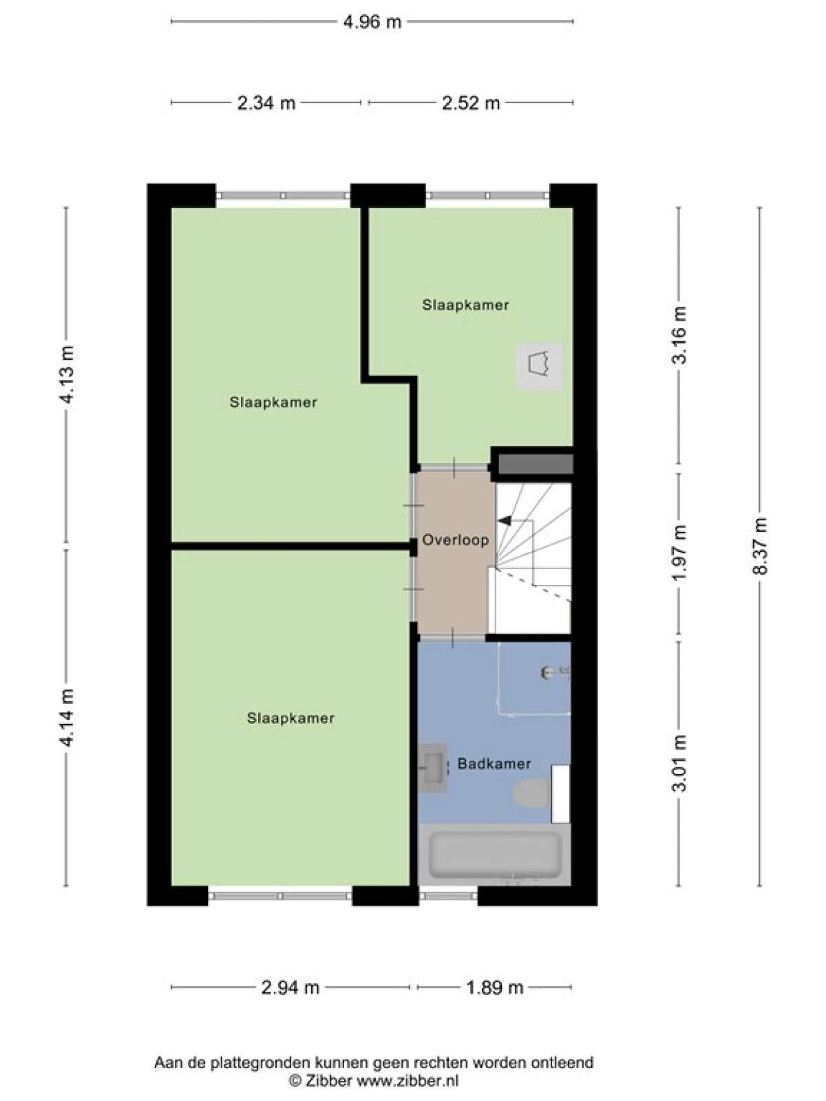
De tweede verdieping biedt drie slaapkamers en een badkamer.
De badkamer is uitgerust met een bad, wastafelmeubel, toilet en douche.
De kleinste slaapkamer is momenteel ingericht als was en werkruimte, maar kan natuurlijk ook als slaapkamer dienen aangezien op de begane grond ook een aansluiting voor de wasmachine te vinden is.
De ramen op deze verdieping zijn voorzien van rolluiken, wat zorgt voor extra comfort en privacy.
Buitenruimte en garage;
De tuin is sfeervol ingericht met grasstroken, beplanting en bestrating. Onder de veranda van kun je een gezellig zit- en eetgedeelte inrichten, ideaal voor warme zomeravonden met vrienden.
Naast de fijne achtertuin is het ook heerlijk vertoeven op het dakterras in kun je ’s morgens de dag starten met een bakje koffie op het balkon in het ochtendzonnetje.
BIJZONDERHEDEN
• Ruime uitgebouwde drive-in woning;
• Woonerf met speeltuintje voor de deur;
• Inpandige garage van 20 m², eenvoudig om te bouwen tot slaapkamer of werkruimte;
• Twee woonkamers en twee badkamers – ideaal voor dubbele bewoning of mantelzorg;
• Veranda van 18 m² in de achtertuin;
• Dakterras van bijna 32 m² en een balkon van 6 m² aan de voorzijde;
• Tuin en dakterras op het zuidwesten – volop genieten van de zon;
• Vrij parkeren voor de deur;
• Gedeeltelijk kunststof kozijnen met draaikiepramen en dubbel glas;
• Zonneschermen op de eerste verdieping, elektrisch bedienbaar;
• Rolluiken op de tweede verdieping;
• Vloerverwarming in de woonkamer beneden;
• Twee wasmachine-aansluitingen (in de berging en de kleinste slaapkamer);
• Waterontharder aanwezig;
• Woning eenvoudig geschikt te maken voor levensloopbestendig wonen.
BEZICHTIGINGEN EN BIEDINGEN:
De bezichtigingen vinden op afspraak plaats.
Bieden en wonen verkoopt deze woning via een transparant biedproces.
Alle biedingen van kandidaat-kopers worden automatisch vastgelegd in een geanonimiseerd
biedlogboek. Het biedlogboek bevat alle biedingen met tijdstip van ontvangst en eventuele
voorbehouden.
Tijdens de bezichtiging zullen wij je uitgebreid informeren over de werking van onze
biedingsprocedure.
Op de Bieden en Wonen website kun je additionele informatie inzien of downloaden.
Informatie over het biedproces wordt getoond op de website van Biedenenwonen.nl
Deze tekst is door ons kantoor met de meeste zorg samengesteld aan de hand van de door
de verkoper aan ons ter hand gestelde gegevens en tekeningen. Derhalve kunnen wij geen
garanties verstrekken, noch kunnen wij op enigerlei wijze eventuele aansprakelijkheid voor
deze gegevens aanvaarden.