This item is archived/sold and no longer available for bidding.












































Kloosterstraat 35, 1115BJ Duivendrecht, Netherlands
Aanvragen voor een bezichtiging graag via Funda
Prachtige kans in Duivendrecht! Deze charmante woning aan de Kloosterstraat 35 is nu te koop. Met zijn karakteristieke uitstraling en ruime indeling is dit de perfecte plek om je thuis te voelen. Geniet van de rustige omgeving en de nabijheid van alle voorzieningen. Maak van deze woning jouw droomhuis en creëer een plek waar je elke dag wilt zijn.
Met de fiets ben je snel bij Watergraafsmeer en het Amstelstation. Het centrum en de Rivierenbuurt zijn ook goed bereikbaar met de fiets. In de omgeving van Duivendrecht zijn verschillende groene parken om te wandelen, spelen en sporten, zoals het Vensterpark en Sportpark Drieburg. De Kloosterstraat ligt vlakbij het dorpscentrum met alle nodige voorzieningen op loopafstand, zoals een supermarkt, drogist en kapper. Het rustige en dorpse karakter van Duivendrecht maakt het een fijne plek voor kinderen om op te groeien, met scholen en kinderdagverblijven in de buurt.
De ligging van de woning is gunstig met goede verbindingen naar de Ring A10, A1, A2 en de Gooiseweg. Metrostation Van der Madeweg, bushaltes en treinstations liggen ook op loop- of fietsafstand.
Indeling
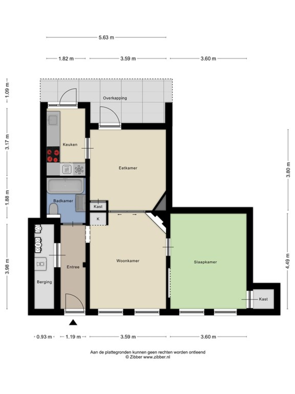
Via de ruime en groen voortuin komt de hal binnen met ruime berging en de entree naar de badkamer die voorzien is van een wastafelmeubel en bad/douche in nette staat,. De lichte woonkamer heeft een mooie houten parket vloer. Deze ruimte is ensuite, heeft nog de authentieke deuren van glas en lood en een mogelijkheid voor een houtkachel. Een ruime slaapkamer zit aangrenzend bij de woonkamer met veel lichtinval. Er is een moderne keuken in hoekopstelling geplaatst voorzien van een houten keukenblad, inductie kookplaat, vaatwasser, combi oven en koelvries combinatie. Zowel de keuken en de woonkamer hebben een deur naar de tuin met overkapping.
BIJZONDERHEDEN
* Woonoppervlakte: ca. 70 m² (NEN meetrapport aanwezig);
* Beneden woning met grote tuin en overkapping;
* Vloerisolatie EPS Parels;
* Zonnepanelen (geplaatst 2024);
* Mooie laminaatvloer;
* VvE maandelijkse bijdrage 126,-;
* Energielabel A;
* Top locatie;
* Oplevering in overleg
Verkoopvoorwaarden:
De algemene verkoop voorwaarden zijn van toepassing op deze kavel. Deze vindt u tevens terug op de website van Bieden & Wonen.
Wij verzoeken gegadigden eerst de woning te bezichtigen, alvorens een bod kan worden geplaatst op de woning.
Graag vriendelijk verzoek via Funda een mail te sturen met verzoek voor bezichtiging.
Bied datum- en tijd
Op de pagina van de betreffende woning in ons dashboard van Bieden en Wonen vind je de begin- en eindtijd van de biedronde.
Biedvoorwaarden:
De algemene biedvoorwaarden zijn van toepassing op dit object. Deze kan je inzien tijdens het registreren in het dashboard van Bieden en Wonen.
Zorgvuldig samengesteld:
Deze advertentietekst is door ons kantoor met de meeste zorg samengesteld aan de hand van de door de verkoper aan ons ter hand gestelde gegevens en tekeningen. Derhalve kunnen wij geen garanties verstrekken, noch kunnen wij op enigerlei wijze eventuele aansprakelijkheid voor deze gegevens aanvaarden.
NEN-2580 normering:
De gepubliceerde oppervlakte en metrages van deze woning zijn door een onafhankelijke partij samengesteld in de vorm van een meetrapport, conform de NEN 2580 normering voor oppervlakte metingen.