


































The measurement report in accordance with NEN 2580 provides the surface area and volume of a home or building based on a fixed Dutch standard. This ensures clear and comparable measurements.
"Part B includes questions about the Homeowners Association (HOA), service charges, maintenance, legal matters, and any special arrangements. The owner completes this truthfully.
The Inventory of Fixtures and Fittings lists which items stay or go with the property sale. It ensures buyer and seller agree on what’s included.
This document is the document that the owner of the registered property is required to provide before the transfer.
The title deed from the Dutch Land Registry (Kadaster) is an official document that proves who the legal owner is of a piece of real estate (such as a house, plot of land, or building) in the Netherlands.
Korenveldstraat 10, 5527HE Hapert, Netherlands
LET OP: DEZE WONING WORDT IN VERHUURDE STAAT VERKOCHT
DIT BETEKENT DAT JE ER ZELF NIET KUNT WONEN ZOLANG DE HUURDERS IN DEZE WONING VERBLIJVEN
INTRODUCTIE
Deze twee-onder-één kapwoning met o.a een leefkeuken, bijkeuken en 3 slaapkamers op een ruim perceel, is een mooie kans voor INVESTEERDERS/BELEGGERS!
De Korenveldstraat is een gezellige straat met een mix van woningen en groen. Het is een rustige buurt waar mensen graag wonen vanwege de vriendelijke sfeer en de nabijheid van voorzieningen. De straat staat bekend om zijn mooie bloemenperken en goed onderhouden tuinen. Het is een mooie plek om te wonen.
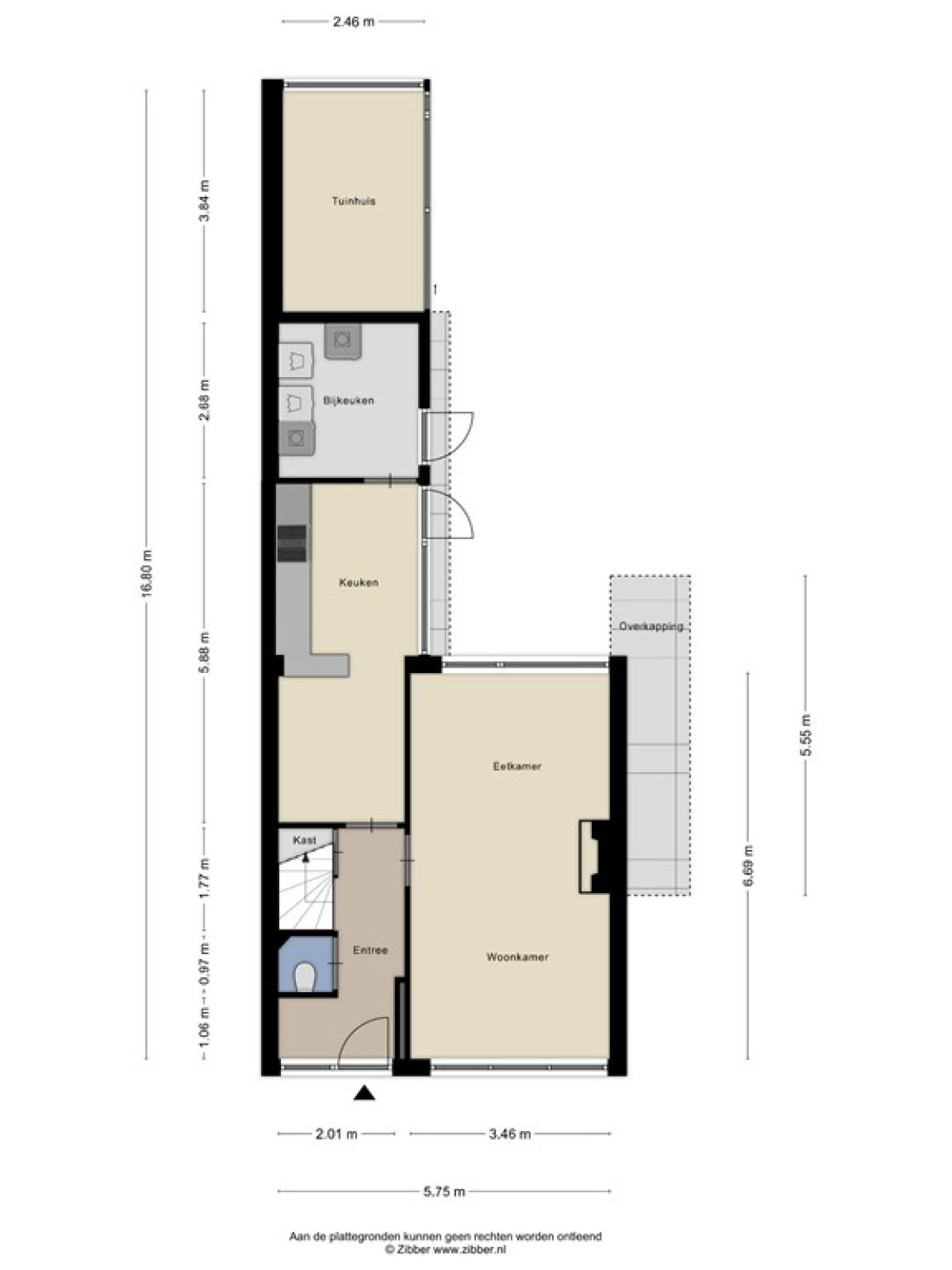
INDELING
Begane grond;
Deze charmante 2 onder 1 kap woning biedt op de begane grond een ruime hal met toegang tot een toilet, meterkast, trapkast en de trapopgang naar de eerste verdieping.
Via de hal kom je in de gezellige doorzonwoonkamer met een sfeervolle open haard, ideaal voor knusse avonden.
De gesloten leefkeuken is voorzien van een oven, vaatwasser, gasfornuis en afzuigkap, en vanuit hier heb je toegang tot de praktische bijkeuken met aansluitingen voor de wasapparatuur.
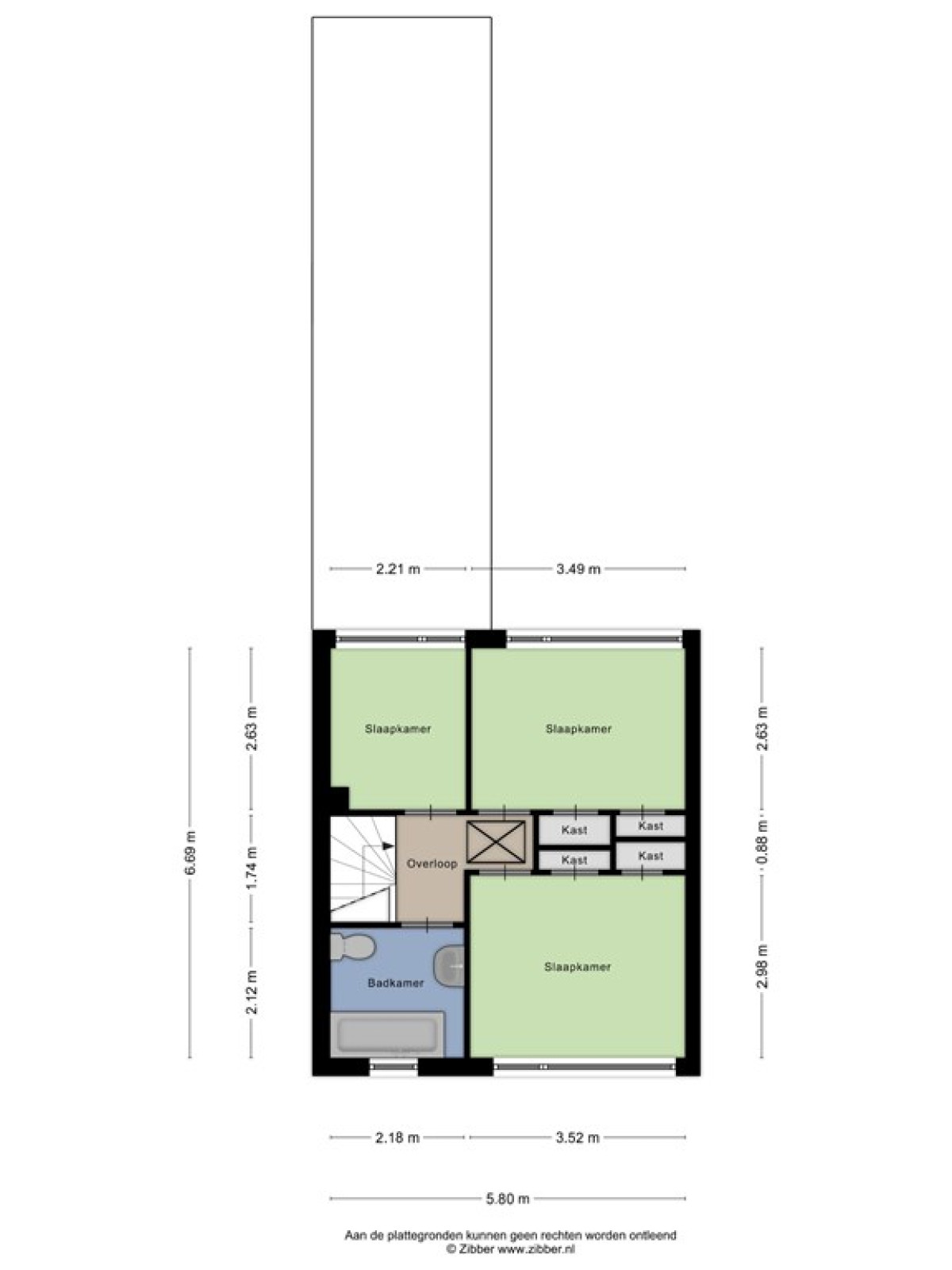
Eerste verdieping;
Op de eerste verdieping bevinden zich 3 slaapkamers, waarvan de 2 grootste voorzien zijn van inbouwkasten.
De badkamer is uitgerust met een ligbad met douchegelegenheid, toilet en wastafel. Vanaf de overloop heb je met een vlizotrap toegang tot de bergzolder.
Zolderverdieping;
Deze zolder is nu in gebruik als bergzolder, maar biedt ook mogelijkheden voor het creëren van een extra kamer door het plaatsen van een vaste trap.
Buitenruimte;
De diepe tuin van de woning biedt veel privacy en heeft een tuinkamer waar je heerlijk kunt ontspannen.
Aan de zijkant van de woning bevindt zich een handige overkapping waar fietsen en andere spullen droog kunnen staan.
Wil je meer weten over deze woning of een bezichtiging plannen? Laat het ons weten, we helpen je graag verder!
BIJZONDERHEDEN
- 2-onder1 kap woning;
- Bouwjaar 1964;
- Kindvriendelijke rustige buurt;
- Doorzon woonkamer met veel lichtinval;
- Drie slaapkamers;
- Bijkeuken;
- Bergzolder met mogelijkheid voor vaste trap;
- Ruime woonkeuken;
- Tuinkamer;
- Overkapping aan de zijkant van de woning;
- Riante achtertuin;
- Ruime badkamer;
- Energielabel F;
- Grotendeels HR glas;
- Oplevering in verhuurde staat voor onbepaalde tijd;
- Let op! De woning wordt dus met de zittende huurders (een gezin met 1 kind) verkocht;
- Passeren van de woning dient plaats te vinden bij; van Voskuijlen & Koekoek notarissen te Bladel.
BEZICHTIGINGEN
De bezichtigingen vinden op afspraak plaats.
Bieden en wonen verkoopt deze woning via een transparant biedproces. Alle biedingen van kandidaat-kopers worden automatisch vastgelegd in een geanonimiseerd biedlogboek. Het biedlogboek bevat alle biedingen met tijdstip van ontvangst en eventuele voorbehouden.
Fee/verkoopkosten €3995,- incl. BTW.
Tijdens de bezichtiging zullen wij u uitgebreid informeren over de werking van ons onlinebiedplatform en de bijbehorende aandachtspunten voor deelname.
Op de Bieden en Wonen website kunt u additionele informatie inzien of downloaden.
Informatie over het biedproces wordt getoond op de website van Biedenenwonen.nl
Deze tekst is door ons kantoor met de meeste zorg samengesteld aan de hand van de door de verkoper aan ons ter hand gestelde gegevens en tekeningen. Derhalve kunnen wij geen garanties verstrekken, noch kunnen wij op enigerlei wijze eventuele aansprakelijkheid voor deze gegevens aanvaarden.