This item is archived/sold and no longer available for bidding.








































Levantplein 13, 1019MA Amsterdam, Netherlands
Welkom bij Levantplein 13, de perfecte combinatie van wonen en werken in het bruisende Amsterdam Oost! Deze unieke woning biedt u de ideale gelegenheid om uw droom van een woon-/werk of bijvoorbeeld atelierfunctie te verwezenlijken. Met zijn onderscheidende architectuur en gunstige locatie is dit pand een waar juweeltje dat wacht om ontdekt te worden.
Laten we beginnen met het prachtige woonaspect van deze verbouwde loftwoning van 243 m2, gelegen in het historische gebouw van de Koninklijke Nederlandsche Stoomboot Maatschappij (KNSM). Levantplein 13 biedt een oase van rust en comfort, waar u kunt ontspannen na een drukke dag. De ruime en lichte loft verwelkomt u met zijn elegante mid-century design, hoge plafonds en grote ramen die zorgen voor overvloedig natuurlijk licht. Geniet van gezellige avonden met vrienden en familie, of kom tot rust met een goed boek in uw eigen knusse hoekje, met een geweldig uitzicht over het water.
Gelegen op de Oostelijke eilanden van Amsterdam, heeft u toegang tot een schat aan culturele en sociale voorzieningen. Ontdek de bruisende kunstscene, geniet van heerlijke gerechten in trendy restaurants en verken de charmante boetiekjes en winkels in de buurt. Met uitstekende openbaar vervoersverbindingen en nabijgelegen snelwegen bent u bovendien in een mum van tijd verbonden met de rest van de stad..
INDELING
De woning heeft een eigen unieke entree vanaf de straat met een trap en een elektrisch bedienbaar luik waarmee je meteen in de woning komt.
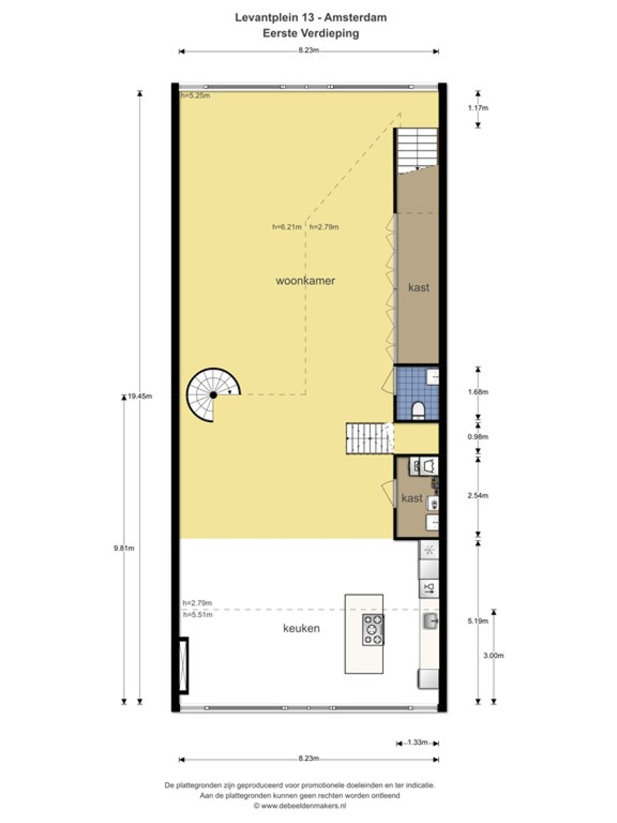
Op de begane grond bevindt zich een imposante doorzon woon-/eetkamer met een gashaard, een open keuken en een plafondhoogte van meer dan 6 meter. De op maat gemaakte keuken is voorzien van een kookeiland, bordenwarmer, twee ovens, vaatwasser en koelkast. Daarnaast is er een gevelbrede glaspui met vrij uitzicht over het water. Kortom, heerlijk vertoeven hier met vrienden/familie en/of collega's.
Op deze verdieping is ook een apart toilet met fonteintje en een praktische berging met aansluiting voor de wasmachine en veel op maat gemaakte kastruimtes.
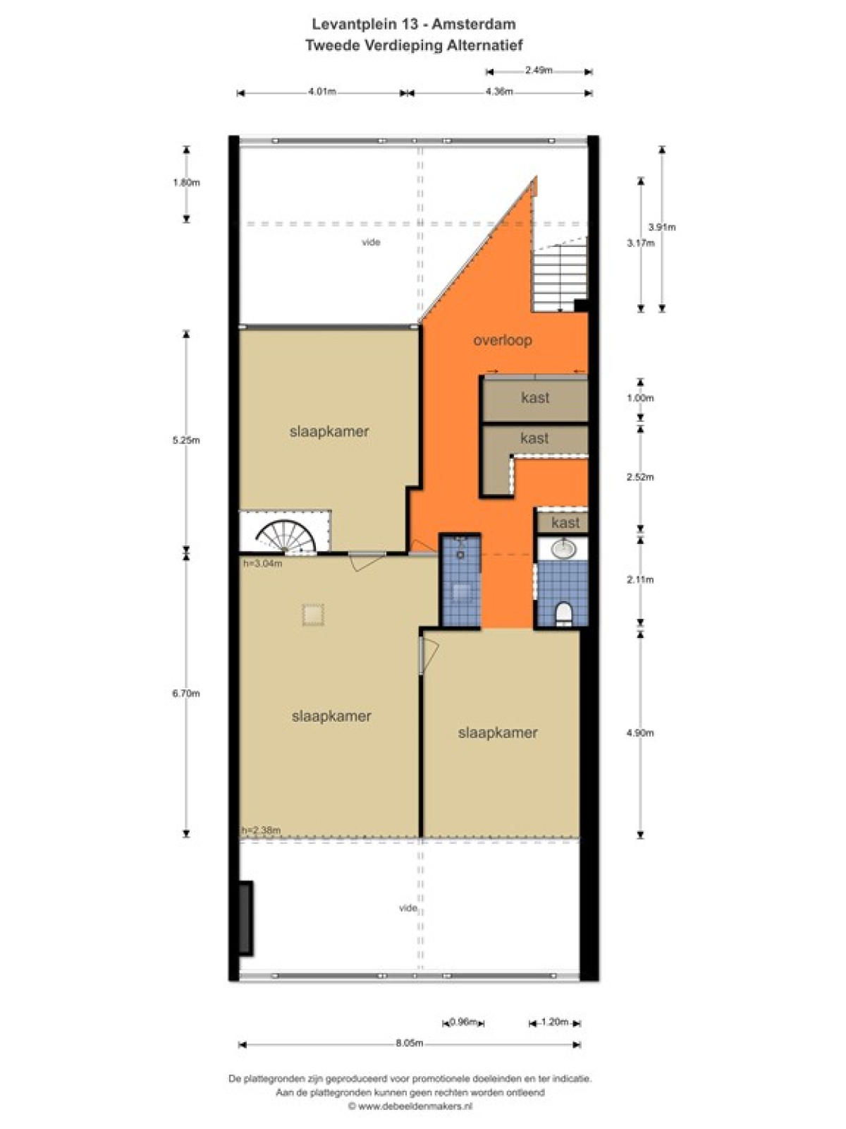
Via een wenteltrap bereikt u de volgende verdieping. Hier bevindt zich een overloop met op maat gemaakte kastruimte en een inloopkast. Verder is er een uitzonderlijk ruime slaapkamer met zicht over het water. Deze ruimte kan gemakkelijk worden opgedeeld in twee of zelfs drie kamers. Centraal gelegen op deze verdieping is de badkamer, die aan de ene zijde een apart toilet met wastafel heeft en aan de andere zijde een ruime inloopdouche met daklicht. Een leuk detail is de stortkoker vanuit de slaapkamer voor de vuile was naar de wasmachineruimte.
BIJZONDERHEDEN
• Loftwoning van 243 m2
• Intern volledig verbouwd in 2011
• Met behoud van openheid en loftgevoel kan het woonoppervlak nog gemakkelijk worden uitgebreid
naar ruim 270 m2 ( voor bijvoorbeeld extra slaap kamers )
• Hoge plafonds tot wel circa 6.21 meter
• Visgraat parketvloeren van Panga-Panga hout met "Chanel" bies
• Zowel vloerverwarming als luchtverwarming middels een cv-ketel. In de zomer kan de luchtverwarming ook
worden gebruikt als extra ventilatie
• Mogelijkheid tot combinatie van wonen en werken
• Extra geïsoleerde vloeren
• Wijds uitzicht over de Ertshaven
• Zwemsteiger voor de deur
• Geen boven- of benedenburen
• Dak voorzien van zonnepanelen!!
• Gemeentelijk monument
GROND
Het appartementsrecht staat op gemeentelijke erfpacht. Het erfpachtcanon is afgekocht tot 30 april 2041. Er is een aanvraag gedaan voor de overstap naar eeuwigdurende erfpacht tegen gunstige voorwaarden.
GESCHIEDENIS VAN HET PAND
De voormalige kantine van de Koninklijke Nederlandsche Stoomboot Maatschappij (KNSM) werd gebouwd begin jaren '50. Het pand was tot in de jaren '70 in gebruik als kantine voor de scheepslui die werkten voor de KNSM en daarna tot begin jaren '80 als kunstenaarsateliers. In de jaren '90 is het pand herontwikkeld tot 7 unieke en creatieve loft appartementen. Inmiddels is het gebouw dan ook een gemeentelijk monument en herinnert het nog altijd aan de bloeiende naoorlogse scheepvaartindustrie van Amsterdam.
OMGEVING
De woning is gelegen aan het autovrije Levantplein op het KNSM-eiland. Het is een kindvriendelijke omgeving met veel speelplaatsen, pleinen, zwemsteigers en watersportmogelijkheden. Winkelcentrum Brazilië biedt een uitgebreid aanbod van winkels en voorzieningen. Op loopafstand bevinden zich de hippe Czaar Peterstraat en de Veemkade. Nieuw Noord, met onder andere het restaurant Hangar, Hotel de Goudfazant en filmhuis FC Hyena, is gemakkelijk bereikbaar met het pontje.
ALGEMEEN
Alle zich in deze aanbieding bevindende informatie is door ons met grote zorgvuldigheid samengesteld. Echter, met betrekking tot deze informatie aanvaarden wij geen enkele aansprakelijkheid, noch kan aan de vermelde informatie enig recht worden ontleend. Graag maken wij een vrijblijvende afspraak voor een bezichtiging met u!
Verkoopvoorwaarden:
De algemene verkoop voorwaarden zijn van toepassing op deze kavel. Deze vindt u tevens terug op de website van Bieden & Wonen.nl
NEN-2580 normering:
De gepubliceerde oppervlakte en metrages van deze woning zijn door een onafhankelijke partij samengesteld in de vorm van een meetrapport, conform de NEN 2580 normering voor oppervlakte metingen.