
































Madurastraat 9, 1094GC Amsterdam, Netherlands
In de Indische buurt West aan de leuke Madurastraat bieden wij dit 2-kamer appartement aan op de derde
verdieping met circa 45 m2 woonoppervlakte en een ruim terras van circa 10 m2. Een heerlijk
Amsterdams uitzicht op mooie gevels, een prima zonligging op het zuiden, én
een berging op de begane grond maken het hier leuk en comfortabel wonen.
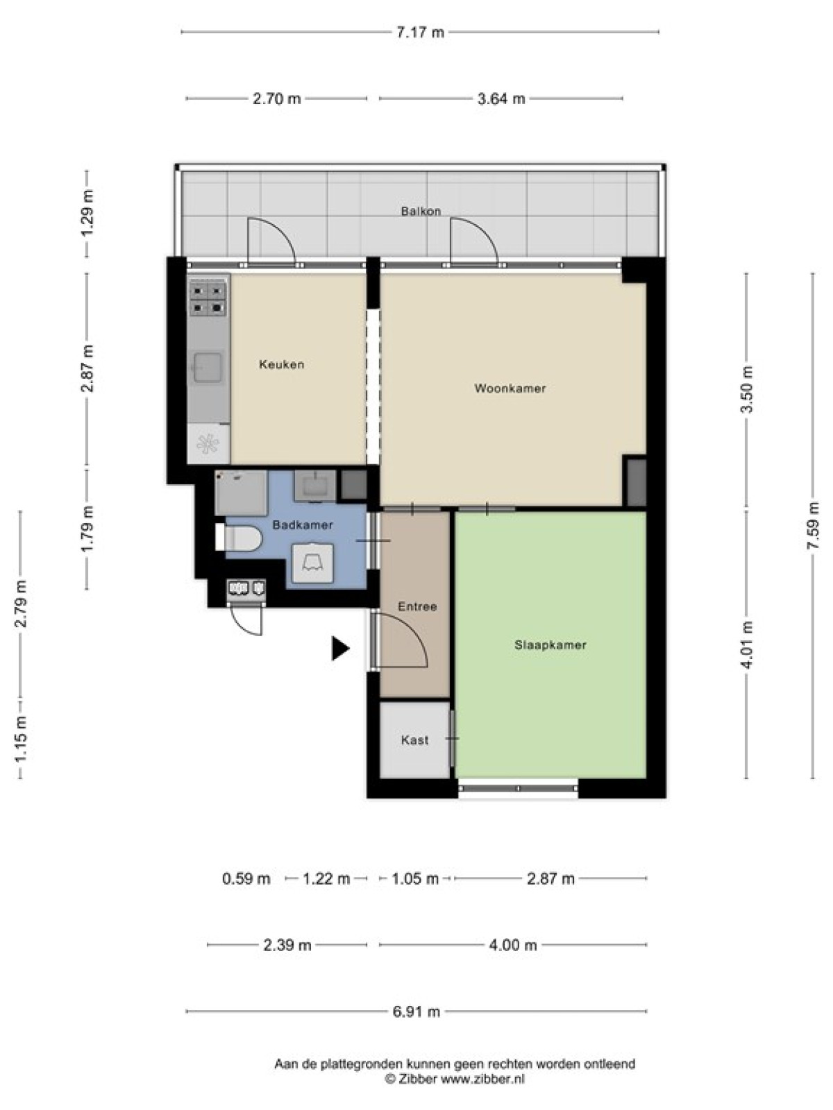
Indeling
op derde verdieping en een woonkamer en balkon op het zuiden zorgen voor veel
dag- & zonlicht. De woonkamer met open keuken is over de hele breedte van het balkon/terras.
De simpele open keuken heeft een losse koelkast, magnetron en een 4-pits gasfornuis.
De badkamer is in verhouding ruim en hier kun je ook je wasmachine en droger kwijt. Daarnaast is er
berging op de begane grond van circa 4 m2 welke ook geschikt is om je fiets binnen te zetten.
VvE De Vereniging van Eigenaren bestaat uit 70 appartement aan de Celebesstraat, Madurastraat
en Bankastraat. Het professioneel beheer wordt uitgevoerd door De Alliantie VvE diensten. De
servicekosten bedragen circa € 88,41,- per maand.
Erfpacht Het appartement is gelegen op grond welke in erfpacht is uitgegeven door de gemeente
Amsterdam.
Parkeren & OV Voor een parkeervergunning is er sprak van vergunning gebied Oost-3. Voor een
actuele stand van de wachtlijst verwijzen wij graag door naar de website van de gemeente
Amsterdam. Via de Zeeburgerdijk en Zuiderzeeweg of de Piet-Hein tunnel is er een goede
ontsluiting naar de A10. Treinstation Muiderpoort is gelegen op loopafstand waar ook trams 1, 3,
12 en 14 een halte hebben. Tram 14 heeft ook een halte dichterbij op de Zeeburgerdijk. Bussen 22
en 40 hebben tevens een halte bij het Muiderpoortstation.
Omgeving
De Madurastraat is een rustige straat in de Indische buurt. Op loopafstand is er een zeer
groot aanbod van speciaalzaken, winkels, supermarkten en boetiekjes op de Javastraat, het
Javaplein, de Dappermarkt en de Czaar Peterstraat. Daarnaast is de buurt een culinair walhalla; Bar
Botanique, Studio K, Mitts, The Meets, het Pompstation, Drovers Dog, De Kop van Oost, Badhuis,
Rum Barrel, Bar Basquiat, Le French Café, Bar Gallizia, allemaal op loopafstand te vinden. Voor
groen kun je kiezen tussen het Flevopark en het Oosterpark.
Kenmerken:
- Groot terras van circa 10 m2 op het zuiden
- Energielabel C
- Meetrapport
- Erfpachtcanon eeuwigdurend afgekocht
- Professioneel beheerde VvE
- Servicekosten VvE ca. € 88,41,- per maand
Verkoopvoorwaarden:
De algemene verkoop voorwaarden zijn van toepassing op deze kavel. Deze vindt u tevens terug op de website van Bieden & Wonen.
Zorgvuldig samengesteld:
Deze advertentietekst is door ons kantoor met de meeste zorg samengesteld aan de hand van de door de verkoper aan ons ter hand gestelde gegevens en tekeningen. Derhalve kunnen wij geen garanties verstrekken, noch kunnen wij op enigerlei wijze eventuele aansprakelijkheid voor deze gegevens aanvaarden.
NEN-2580 normering:
De gepubliceerde oppervlakte en metrages van deze woning zijn door een onafhankelijke partij samengesteld in de vorm van een meetrapport, conform de NEN 2580 normering voor oppervlakte metingen.