This item is archived/sold and no longer available for bidding.


























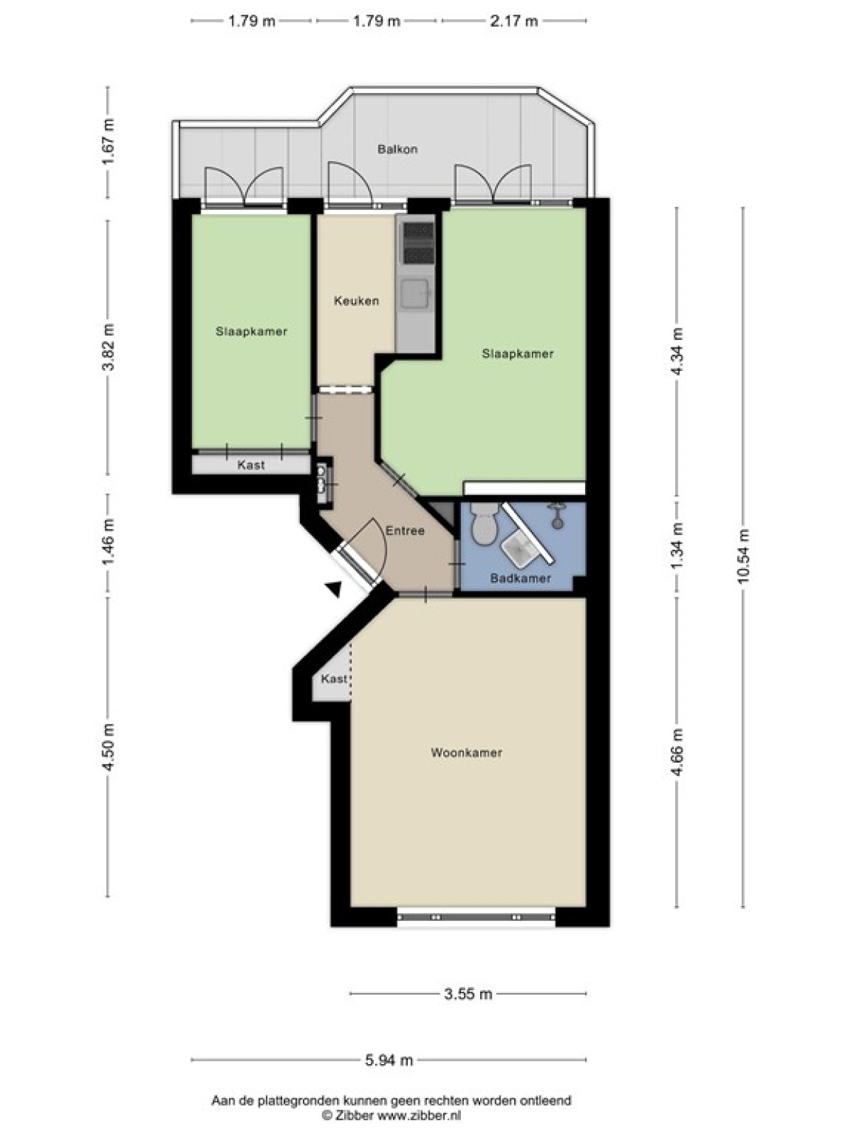
The measurement report in accordance with NEN 2580 provides the surface area and volume of a home or building based on a fixed Dutch standard. This ensures clear and comparable measurements.
Maritzstraat 12, 1091KW Amsterdam, Netherlands
(ENGLISH BELOW)
Speciaal voor starters of studenten!! Dit prachtig en efficiënt ingedeelde 2-kamer appartement in het levendige Amsterdam Oost is precies wat u zoekt! Met een oppervlakte van 47m2 biedt de woning een lichte woonkamer, een keuken met inbouwapparatuur, een ruime slaapkamer, badkamer, extra slaapkamer (of werkkamer), zonnig balkon, berging, gedeelde tuin en overdekte fietsenstalling. Bovendien is de erfpacht eeuwigdurend afgekocht, wat het plaatje compleet maakt.
De entree van het huis bevindt zich op de tweede verdieping. De woonkamer is aan de voorkant gelegen en heeft een vrij uitzicht. De tweede kamer kan gebruikt worden als extra slaapkamer of als werkkamer. De nieuwe luxe keuken, die uit 2024 dateert, heeft een volledige koelkast en vriezer, een gaskookplaat en een oven. Het balkon is bereikbaar vanuit de keuken & de bijkamer en is 7m2 groot en op het zuidwesten gelegen, perfect om van de zon te genieten! De ruime slaapkamer aan de achterkant geeft ook toegang tot het balkon via openslaande deuren. De badkamer heeft een inloopdouche, toilet en een wastafel. De hele woning heeft een nette laminaatvloer (2023) en dubbele beglazing. Er is ook een aparte berging van circa 4m2 aanwezig.
Het appartement is gelegen in levendig Amsterdam Oost, vlak bij het Oosterpark waar je kunt genieten van een wandeling, picknick of deel kunt nemen aan een tal van sportieve activiteiten. In de buurt vind je het Beukenplein, de Linnaeusstraat en de Middenweg met diverse populaire hotspots zoals Pizza Beppe, Coffee Company, SLA, Café Maxwell, De Biertuin en Café de Jeugd. Voor de boodschappen kun je terecht bij de Albert Heijn, welke direct voor de deur zit. Ook het winkelcentrum Oostpoort is op 5 minuten fietsafstand met winkels zoals HEMA, Action, Xenos, H&M en Rituals. Verder zijn er veel unieke eetgelegenheden en winkels zoals Masimo, Coffee Bru, The Cottage en Pazzi Oost. Ook De Pijp en het stadscentrum zijn gemakkelijk bereikbaar per fiets. Voor een dagje cultuur kun je terecht bij Artis, Hortus Botanicus, Het Tropenmuseum, Het Scheepvaartmuseum en NEMO.
De ligging van de woning is ideaal wat betreft het openbaar vervoer, met diverse bushaltes, tramhaltes en metrostations op loopafstand. Station Muiderpoort en het Amstelstation zijn makkelijk te bereiken te voet. Daarnaast biedt de woning snelle toegang tot de uitvalswegen en de A10. Voor meer informatie over parkeervergunningen kunt u terecht op de website van de gemeente Amsterdam.
Bijzonderheden:
- Praktische en lichte 3 kamerwoning van 47m2;
- Bouwjaar 1928;
- Gemeenschappelijke binnentuin met tuinhuis en overdekte afgesloten fietsenstalling;
- Nen 2580 meetrapport aanwezig;
- Zonnig balkon;
- Separate berging van ca. 4m2;
- Dubbele beglazing;
- Keuken uit 2024 met inbouwapparatuur (Siemens);
- Professioneel beheerde VVE bestaande uit 102 leden. Het beheer wordt uitgevoerd door “De Nieuwe Wereld” en heeft een zeer gezonde financiële positie;
- Verwarming d.m.v. blokverwarming en het voorschot stookkosten bedraagt € 80,- per maand;
- Energielabel E;
- Erfpacht eeuwigdurend afgekocht;
- Koopakte wordt opgemaakt door een notaris in Amsterdam.
- Oplevering in overleg. Voorkeur is zo snel mogelijk!
Verkoopvoorwaarden:
De algemene verkoop voorwaarden zijn van toepassing op deze kavel. Deze vindt u tevens terug op de website van Bieden & Wonen.
Zorgvuldig samengesteld:
Deze advertentietekst is door ons kantoor met de meeste zorg samengesteld aan de hand van de door de verkoper aan ons ter hand gestelde gegevens en tekeningen. Derhalve kunnen wij geen garanties verstrekken, noch kunnen wij op enigerlei wijze eventuele aansprakelijkheid voor deze gegevens aanvaarden.
NEN-2580 normering:
De gepubliceerde oppervlakte en metrages van deze woning zijn door een onafhankelijke partij samengesteld in de vorm van een meetrapport, conform de NEN 2580 normering voor oppervlakte metingen.
Especially for starters or students!! This beautifully and efficiently laid out 2-room apartment in lively Amsterdam East is exactly what you are looking for! With an area of 47m2, the house offers a bright living room, a kitchen with built-in appliances, a spacious bedroom, bathroom, extra bedroom (or office), sunny balcony, storage room, shared garden and covered bicycle shed. In addition, the leasehold has been bought off perpetually, which completes the picture.
The entrance to the house is on the second floor. The living room is located at the front and has an unobstructed view. The second room can be used as an extra bedroom or as an office. The new kitchen, which dates from 2024, has a full fridge and freezer, a gas hob and an oven. The balcony is accessible from the kitchen & the side room and is 7m2 in size and faces southwest, perfect for enjoying the sun! The spacious bedroom at the back also gives access to the balcony through French doors. The bathroom has a walk-in shower, toilet and sink. The entire house has a neat laminate floor (2023) and double glazing. There is also a separate storage room of approximately 4m2.
The apartment is located in lively Amsterdam East, close to the Oosterpark where you can enjoy a walk, picnic or participate in a variety of sporting activities. In the neighborhood you will find Beukenplein, Linnaeusstraat and Middenweg with various popular hotspots such as Pizza Beppe, Coffee Company, SLA, Café Maxwell, De Biertuin and Café de Jeugd. For groceries you can go to Albert Heijn, which is right on your doorstep. The Oostpoort shopping center is also a 5-minute bike ride away with shops such as HEMA, Action, Xenos, H&M and Rituals. There are also many unique eateries and shops such as Masimo, Coffee Bru, The Cottage and Pazzi Oost. De Pijp and the city center are also easily accessible by bicycle. For a day of culture you can go to Artis, Hortus Botanicus, The Tropenmuseum, The Maritime Museum and NEMO.
The location of the house is ideal in terms of public transport, with several bus stops, tram stops and metro stations within walking distance. Muiderpoort station and the Amstel station are easy to reach on foot. In addition, the house offers quick access to the highways and the A10. For more information about parking permits, please visit the website of the municipality of Amsterdam.
Particularities:
- Practical and bright 3-room apartment of 47m2;
- Year of construction 1928;
- Communal courtyard with garden house and covered, closed bicycle shed;
- Nen 2580 measurement report available;
- Sunny balcony;
- Separate storage room of approx. 4m2;
- Double glass;
- Kitchen from 2024 with built-in appliances (Siemens);
- Professionally managed VVE consisting of 102 members. The management is carried out by “De Nieuwe Wereld” and has a very healthy financial position;
- Heating by means of block heating and the advance payment for heating costs is € 80 per month;
- Energy label E;
- Leasehold bought off perpetually;
- Purchase deed is drawn up by a notary in Amsterdam.
- Delivery in consultation. Preference is as soon as possible!
Conditions of sale:
The general terms and conditions of sale apply to this lot. You can also find this on the Bieden & Wonen website.
Carefully composed:
This advertising text has been compiled with the utmost care by our office based on the data and drawings provided to us by the seller. Therefore, we cannot provide any guarantees, nor can we accept any liability for this data in any way.
NEN-2580 standard:
The published surface area and measurements of this home have been compiled by an independent party in the form of a measurement report, in accordance with the NEN 2580 standard for surface measurements.