This item is archived/sold and no longer available for bidding.




























































































Martinus Jan Langeveldstraat 12, 1068PE Amsterdam, Netherlands
Instapklaar, modern en perfect voor gezinnen: Uw droomhuis in Amsterdam-West wacht op u!
Op zoek naar een woning die direct voelt als thuis, met alle ruimte, luxe en comfort die u zoekt? Deze prachtige eengezinswoning aan de Martinus Jan Langeveldstraat in het levendige Amsterdam-West biedt alles wat u nodig heeft voor een stijlvol en zorgeloos leven. Gebouwd in 2016 en volledig instapklaar, met maar liefst 172 m² aan woonoppervlak, 4 ruime slaapkamers, een zonnige tuin met uitzicht op het water én een dakterras. Daarnaast is er een open haard die u in de winter van een knus gevoel voorziet en door de lichtstraat en vele ramen voelt het licht aan in huis. Dit is een perfect huis voor (jonge) gezinnen die op zoek zijn naar een warme thuisbasis en een duurzame woning in een kindvriendelijke buurt.
Wat maakt deze woning uniek?
* Ruimte en comfort: Met 4 slaapkamers en een royale woonkamer is er meer dan genoeg ruimte voor het hele gezin. Geniet van de vloerverwarming en de moderne open keuken, uitgerust met hoogwaardige inbouwapparatuur.
* Zonnige tuin en dakterras: Ontspan in de ruime achtertuin op het zuiden of geniet van de zon op het dakterras met prachtig uitzicht over het water.
* Stijlvolle stijl: Laat je verrassen door de luxe marmeren vloer, geniet van de open haard en dompel jezelf onder in het heerlijke ligbad.
* Kindvriendelijke omgeving: Laat uw kinderen veilig spelen voor de deur, terwijl u geniet van de rust in deze gezellige buurt. Kinderdagverblijven, basisscholen en speeltuinen liggen op loopafstand.
* Perfecte verbindingen en ideale locatie: Met tram, bus en snelwegen om de hoek bent u met 20 minuten in hartje Amsterdam of op Schiphol. Winkelcentra, supermarkten en recreatiemogelijkheden zijn op loopafstand.
* Duurzaam en energiezuinig: Met energielabel A+ en zes zonnepanelen bent u voorbereid op de toekomst.
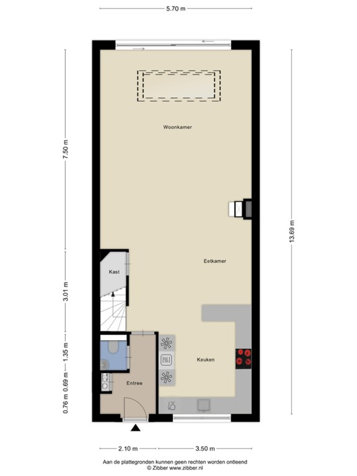
Indeling van de woning
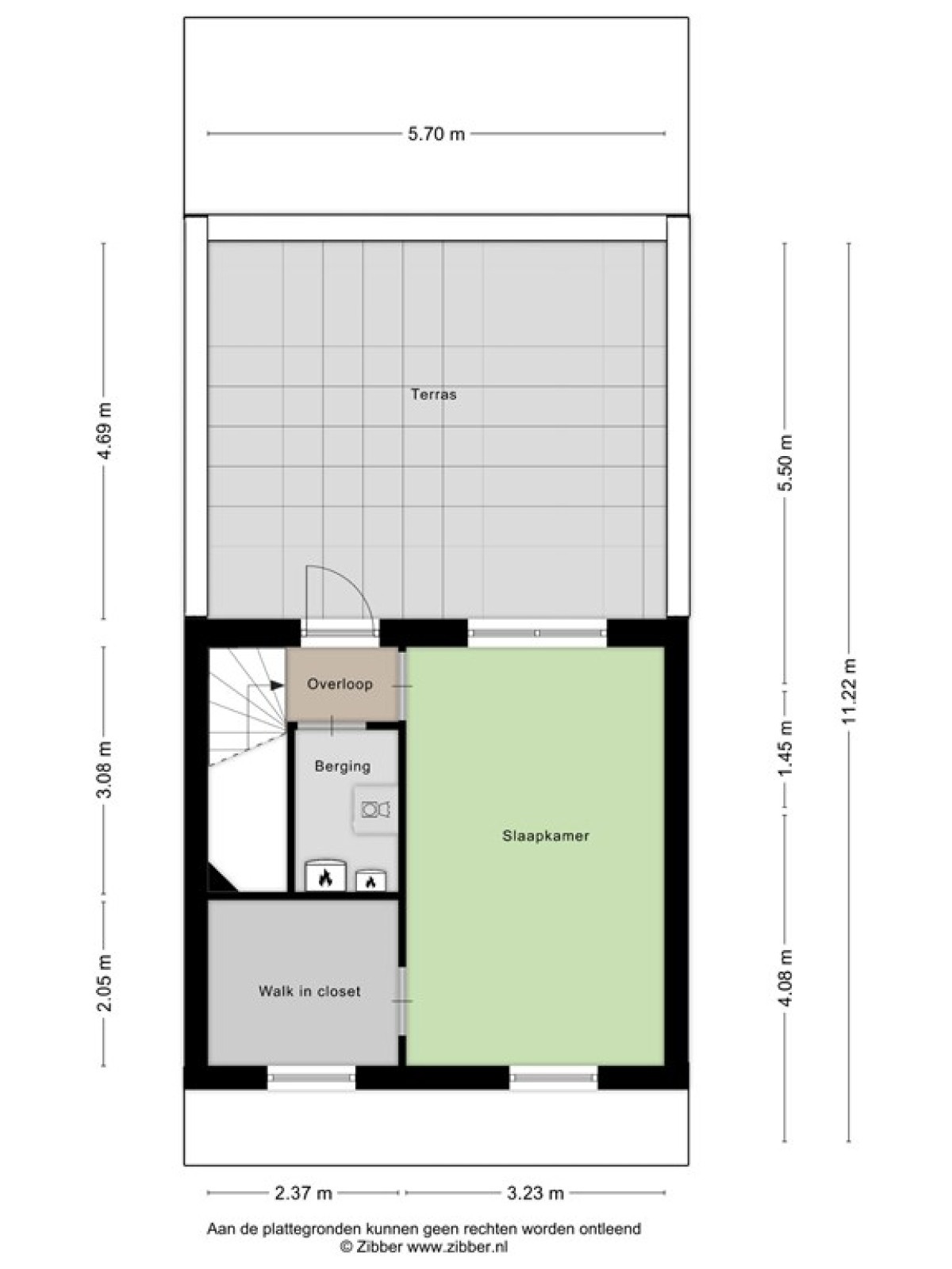
Bij binnenkomst in de ruime hal met toilet, loopt u door naar de grote en lichte woonkamer met schuifdeuren die leiden naar de zonnige tuin. De moderne open keuken is voorzien van alle gemakken, waaronder een geïntegreerde vaatwasser, een ruime koelkast en een grote aparte vriezer, een inductie kookplaat, een oven én een combimagnetron. Op de eerste verdieping vindt u drie ruime slaapkamers, een luxe badkamer met ligbad en inloopdouche, een apart toilet en een opbergkast. De tweede verdieping biedt nog een extra kamer met inloopkast en directe toegang tot het prachtige dakterras waar u nog tot in de late uurtjes van de zon kunt genieten.
Bijzonderheden
* Ruim en lichte gezinswoning van ca. 172 m²;
* Tuin met vrij uitzicht op het water;
* Dakterras;
* Energielabel A+;
* Open haard;
* Zes zonnepanelen;
* Grote woonkamer met moderne open keuken voorzien van diverse inbouwapparatuur;
* Vier slaapkamers;
* Moderne badkamer met ligbad, inloopdouche en wastafel;
* Separaat toilet in de hal en op de eerste verdieping;
* Erfpacht € 2.280,- per jaar ( offerte aanvraag voor afkoop ineens loopt bij de Gemeente waarover overleg )
* Levering in overleg.
Verkoopvoorwaarden:
De algemene verkoopvoorwaarden zijn van toepassing op deze kavel. Deze vindt u tevens terug op de website van Bieden & Wonen.
Zorgvuldig samengesteld:
Deze advertentietekst is door ons kantoor met de meeste zorg samengesteld aan de hand van de door de verkoper aan ons ter hand gestelde gegevens en tekeningen. Derhalve kunnen wij geen garanties verstrekken, noch kunnen wij op enigerlei wijze eventuele aansprakelijkheid voor deze gegevens aanvaarden.
NEN-2580 normering: