This item is archived/sold and no longer available for bidding.












































This document is the document that the owner of the registered property is required to provide before the transfer.
The measurement report in accordance with NEN 2580 provides the surface area and volume of a home or building based on a fixed Dutch standard. This ensures clear and comparable measurements.
"Part B includes questions about the Homeowners Association (HOA), service charges, maintenance, legal matters, and any special arrangements. The owner completes this truthfully.
The Inventory of Fixtures and Fittings lists which items stay or go with the property sale. It ensures buyer and seller agree on what’s included.
The title deed from the Dutch Land Registry (Kadaster) is an official document that proves who the legal owner is of a piece of real estate (such as a house, plot of land, or building) in the Netherlands.
Molenvlietstraat 9, 5142EL Waalwijk, Netherlands
LET OP: AANVRAGEN VOOR EEN BEZICHTIGING BIJ VOORKEUR PER E-MAIL OF VIA FUNDA.
Interesse? Wij nemen graag de tijd voor je!
Bieden en Wonen Almere verkoopt deze woning:
INTRODUCTIE:
Perfect Voor Jonge Gezinnen
Waalwijk biedt een perfecte combinatie van rustig wonen en de nabijheid van stedelijke voorzieningen. Geniet van de groene omgeving en de diverse recreatiemogelijkheden die deze stad te bieden heeft. Met uitstekende verbindingen naar omliggende steden en de snelweg, is Waalwijk een strategische locatie voor werkenden en gezinnen.
De ligging van deze woning in een kindvriendelijke buurt met relatief veel gezinnen maakt het een ideale plek om op te groeien en om als ouder zorgeloos te kunnen wonen. De veilige omgeving en nabijheid van scholen en speelgelegenheden zorgen voor een prettige leefomgeving voor zowel jong en oud.
Ontdek dit charmante woonhuis gelegen aan de Molenvlietstraat 9 in het geliefde Laageinde van Waalwijk. Deze geschakelde twee onder een kap eengezinswoning uit 2003 biedt een aangename mix van ruimte, comfort en gezelligheid. Met een achtertuin van 64 m2, is er voldoende ruimte om te genieten van het buitenleven en quality time door te brengen met je dierbaren.
INDELING:
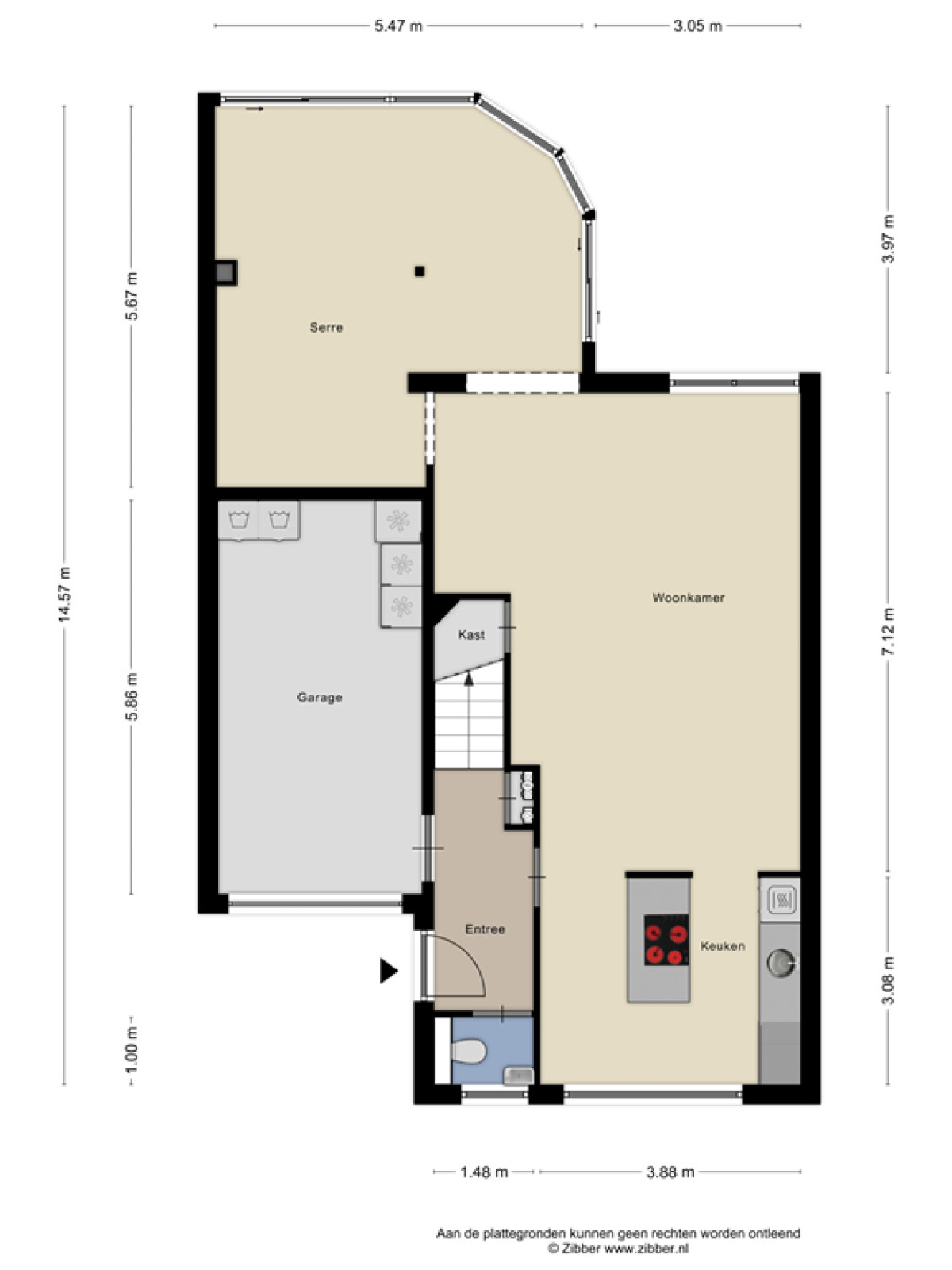
BEGANE GROND:
Bij binnenkomst word je verwelkomd door een ruime hal met toilet en meterkast, leidend naar de garage. De woonkamer is voorzien van een open keuken en een prachtige serre die zorgt voor overvloedige lichtinval en een heerlijk uitzicht op de tuin.
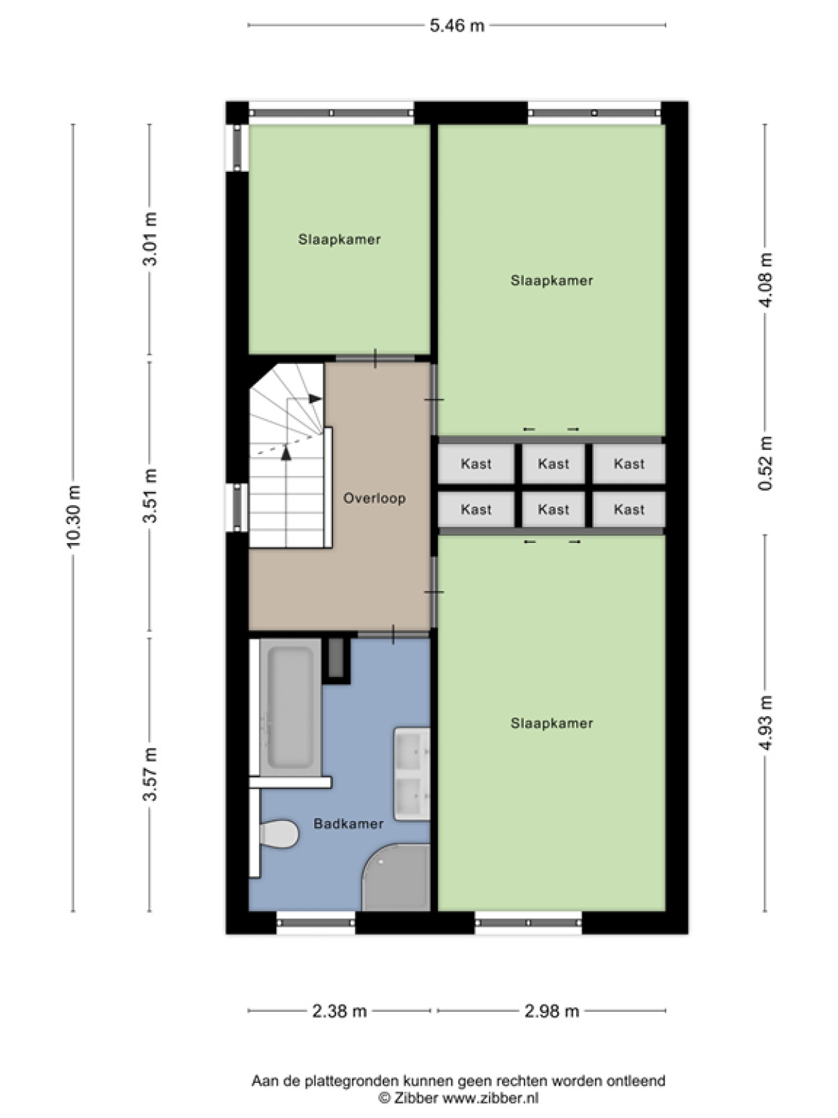
EERSTE VERDIEPING:
Bevind zich drie slaapkamers, waarvan de twee grootste slaapkamers zijn uitgerust met handige inbouwkasten. De badkamer op deze verdieping is voorzien van een toilet, twee wastafels, een bad en een douche; ideaal voor de ochtendrush van een druk gezin.
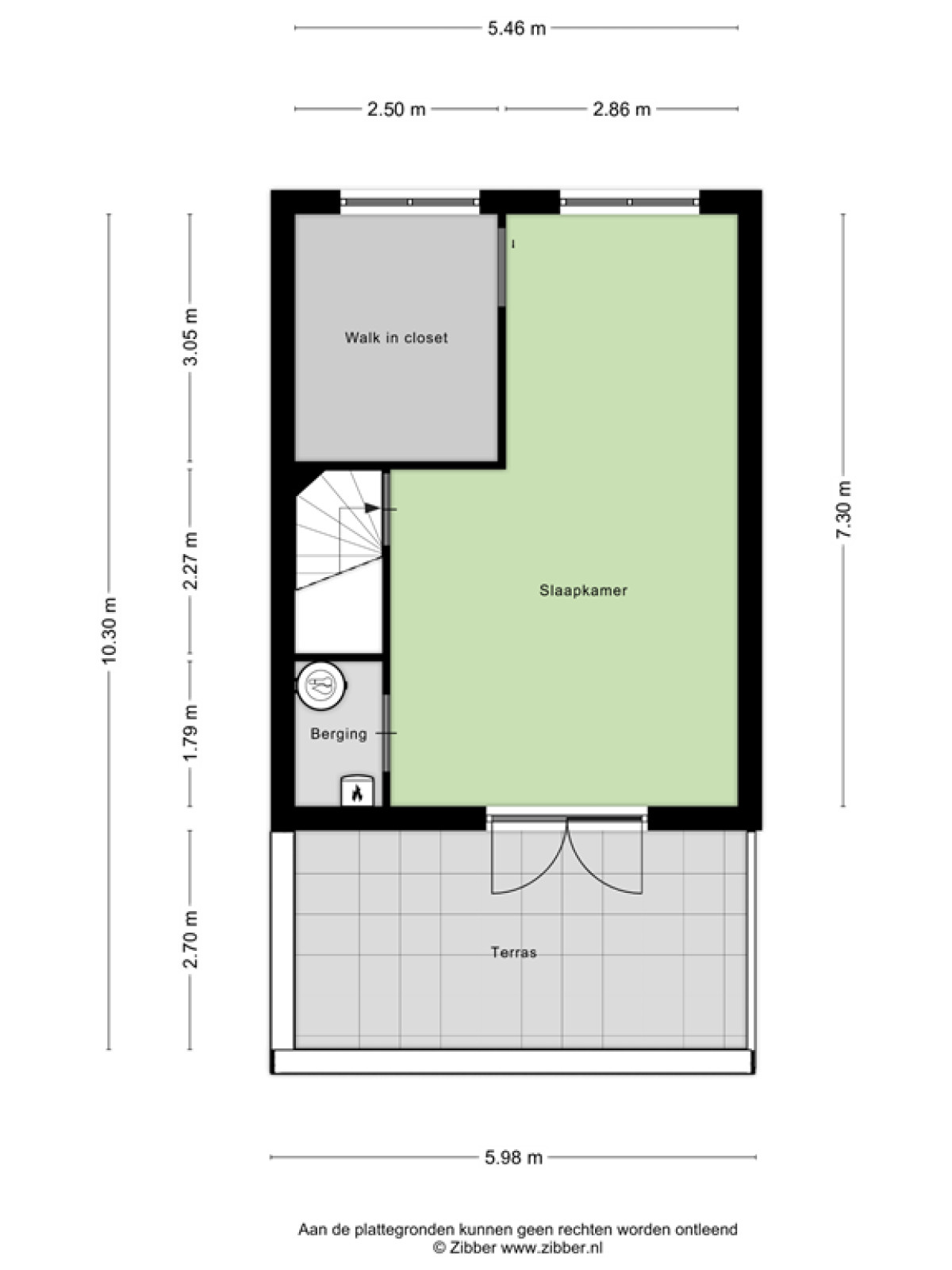
TWEEDE VERDIEPING:
Herbergt een vierde slaapkamer met een eigen walk-in closet, perfect voor extra opbergruimte. Daarnaast biedt deze verdieping toegang tot een heerlijk dakterras waar je kunt ontspannen en genieten van de frisse lucht.
BUITENRUIMTE:
Onderhoudsvriendelijke tuin, compleet met kunstgras dat er altijd groen en verzorgd uitziet, ideaal voor kinderen om veilig te spelen en voor jou om te ontspannen terwijl zij spelen.
BIJZONDERHEDEN:
• Energielabel A
• Kindvriendelijke wijk
• Eigen grond om je auto voor je oprit te zetten.
• Eigen garage, eventueel te verbouwen naar eigen werkplek/kantoor.
• 3 slaapkamers voorzien van inbouwkasten/walk in closet.
• Op enkele minuten zit je op de A59
• Nieuwe HR Remeha cv-ketel 10/2023
• Schilderwerk buiten kozijnen 2023
BEZICHTIGINGEN:
Nieuwsgierig geworden? Voor het maken van een bezichtiging afspraak kun je contact opnemen via funda, de woningpagina.
Tijdens de bezichtiging zullen wij u ook uitgebreid informeren over de werking van ons Online-biedplatform en de bijbehorende aandachtspunten voor deelname.
Wij verplichten gegadigden eerst een woning te bezichtigen, alvorens een bod kan worden geplaatst op de woning.
Bied datum- en tijd
Op de pagina van de betreffende woning op de Bieden en Wonen website vind je de begin- en eindtijd van de biedronde.
Bied procedure:
Biedingen kunnen uitsluitend worden gedaan via het online biedsysteem van Bieden en Wonen binnen de getoonde veiling datum- en tijd. Na afloop van de biedronde heeft verkoper het gun recht van maximaal 3 werkdagen. De koper behoudt de wettelijke 3 dagen bedenktijd na het tekenen van de koopovereenkomst en het gunnen van de woning.
Bied voorwaarden:
De algemene bied voorwaarden zijn van toepassing op dit veilingobject. Deze kan je inzien tijdens het registreren als bieder op de website: Bieden en Wonen.
Zorgvuldig samengesteld:
Deze advertentietekst is door ons kantoor met de meeste zorg samengesteld aan de hand van de door de verkoper aan ons ter hand gestelde gegevens en tekeningen. Derhalve kunnen wij geen garanties verstrekken, noch kunnen wij op enigerlei wijze eventuele aansprakelijkheid voor deze gegevens aanvaarden.
NEN-2580 normering:
De gepubliceerde oppervlakte en metrages van deze woning zijn door een onafhankelijke partij samengesteld in de vorm van een meetrapport, conform de NEN 2580 normering voor oppervlakte metingen.