This item is archived/sold and no longer available for bidding.









































Oeverpad 179, 1068PH Amsterdam, Netherlands
Graag via Funda een bezichtiging inplannen.
(ENGLISH BELOW)
Dit bijzondere, ultralichte appartement bevindt zich op de 6e etage van de Schutterstoren, die in 2008 de Amsterdamse Nieuwbouwprijs heeft ontvangen. Het appartement, opgeleverd in 2007, biedt een adembenemend uitzicht over de stad. Dankzij de grote raampartijen geniet je van een overvloed aan natuurlijk licht. De erfpacht is voor altijd afgekocht en de parkeerplaats is bij de prijs inbegrepen.
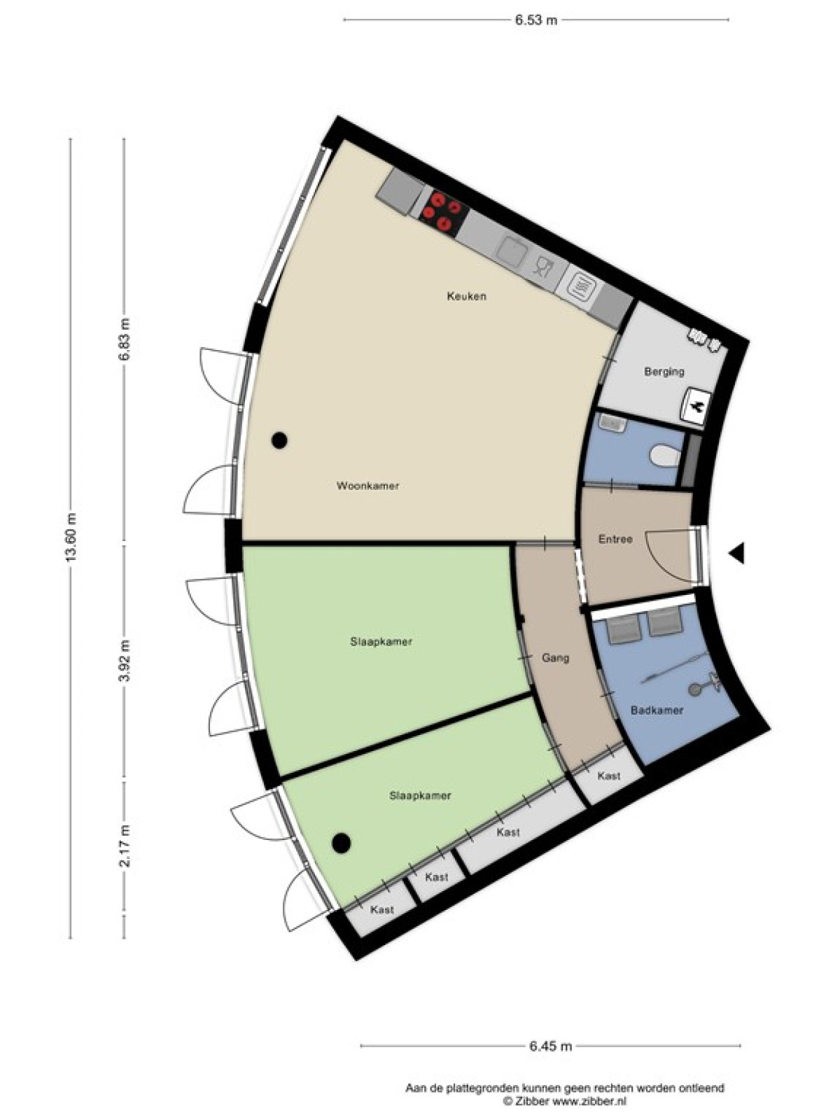
Indeling
Op de begane grond is er een gemeenschappelijke entree met 2 liften. Via een van deze liften of het trappenhuis bereikt u uw eigen entree op de 6e verdieping. Bij binnenkomst wordt u verwelkomd in een lichte ruimte met moderne glazen deur en grote ramen. In de hal vindt u een apart toilet en garderobe. De luxe open keuken, geïnstalleerd in 2019, is uitgerust met diverse inbouwapparatuur van Siemens, waaronder een vaatwasser, inductiekookplaat, Smart combi oven/magnetron, koelkast en vriezer. Er is ook veel bergruimte aanwezig. Grenzend aan de keuken bevindt zich een berging met wasmachineaansluiting en cv-opstelling (2021). Vanuit de hal heeft u toegang tot de vernieuwde luxe badkamer met op maat gemaakte spiegel, regendouche, designradiator en unieke designkranen. Ook zijn er twee ruime slaapkamers die naast elkaar liggen.
In de kelder is er een ruimte voor fietsen en een privé parkeerplaats beschikbaar.
Omgeving
Deze is uniek, met veel groen en rust, maar zeker niet saai. Er zijn verschillende activiteiten te doen bij de brug naar het park rond de Sloterplas. Hardlopers starten hun route rond de Sloterplas, hondenbezitters ontmoeten elkaar met hun vrolijke viervoeters, kinderen spelen en fietsen vrij rond, en buurtbewoners maken een wandeling na het eten. De Sloterplas blijkt een van de meest populaire plekken in Amsterdam te zijn. Het is mogelijk om op deze locatie in Amsterdam twee auto's te hebben, omdat er buiten het complex nog parkeergelegenheid is.
Op korte afstand bevinden zich ook het Sloterparkbad, met een buitenzwembad en het populaire Strand Sloterplas. Voor sportliefhebbers is er het sportpark Ookmeer, waar tennisverenigingen, voetbalclubs en een manege te vinden zijn. Het winkelcentrum Osdorpplein, met verschillende restaurants, supermarkten, een bibliotheek, een Hema, gezellige cafés en een fitnesscentrum, is gemakkelijk te voet bereikbaar. Daarnaast bevindt zich hier ook het Meervaart theater met een gevarieerd cultureel programma.
Lokatie
Het appartement is goed te bereiken met zowel het openbaar vervoer als met de auto. Tramlijn 17 ligt op slechts vijf minuten lopen of twee minuten fietsen van het huis. Ook buslijnen 61 en 69 (naar Schiphol Plaza) zijn op loopafstand te vinden, waardoor u binnen 25 minuten op Schiphol kunt zijn. Met de auto zijn de snelwegen A4, A9 en A10 gemakkelijk en snel te bereiken.
VvE en erfpacht
De servicekosten voor de VvE bedragen €155 per maand. De erfpacht is eeuwigdurend afgekocht.
Kenmerken:
- Uiterst licht en comfortabel driekamerappartement van 84 m2 (NEN 2580 meetrapport aanwezig);
- Rondom licht en uitzicht;
- Ruime kamers met voldoende ruimte voor kasten;
- Bouwjaar: 2007;
- Isolatie: volledig- Gelegen in een prachtige groene oase;
- Eigen inpandige parkeerplaats;
- Goed functionerende VvE, servicekosten per maand: €155,-;
- Cv ketel onder verhuur tegen € 28,- per maand.
- Erfpacht is eeuwigdurend afgekocht;
- winkels, vertier en sport/recreatie op loopafstand;
- goede bereikbaarheid met openbaar vervoer.
Verkoopvoorwaarden:
De algemene verkoopvoorwaarden zijn van toepassing op deze kavel. Deze vindt u tevens terug op de website van Bieden & Wonen.
Zorgvuldig samengesteld:
Deze advertentietekst is door ons kantoor met de meeste zorg samengesteld aan de hand van de door de verkoper aan ons ter hand gestelde gegevens en tekeningen. Derhalve kunnen wij geen garanties verstrekken, noch kunnen wij op enigerlei wijze eventuele aansprakelijkheid voor deze gegevens aanvaarden.
NEN-2580 normering:
De gepubliceerde oppervlakte en metrages van deze woning zijn door een onafhankelijke partij samengesteld in de vorm van een meetrapport, conform de NEN 2580 normering voor oppervlakte metingen.
(ENGLISH)
his special, ultra-light apartment is located on the 6th floor of the Schutterstoren, which received the Amsterdam New Construction Prize in 2008. The apartment, completed in 2007, offers breathtaking views of the city. Thanks to the large windows, you can enjoy an abundance of natural light. The lease has been bought off forever and the parking space is included in the price.
Layout
On the ground floor there is a communal entrance with 2 elevators. You can reach your own entrance on the 6th floor via one of these elevators or the stairwell. Upon entering you are welcomed into a bright space with a modern glass door and large windows. In the hall you will find a separate toilet and wardrobe. The luxurious open kitchen, installed in 2019, is equipped with various built-in appliances from Siemens, including a dishwasher, induction hob, Smart combination oven/microwave, refrigerator and freezer. There is also plenty of storage space. Adjacent to the kitchen is a storage room with washing machine connection and central heating system (2021). From the hall you have access to the renovated luxurious bathroom with custom-made mirror, rain shower, design radiator and unique designer taps. There are also two spacious bedrooms that are next to each other.
In the basement there is a room for bicycles and a private parking space available.
Surrounding
This is unique, with lots of greenery and tranquility, but certainly not boring. There are various activities to do at the bridge to the park around the Sloterplas. Runners start their route around the Sloterplas, dog owners meet with their cheerful four-legged friends, children play and cycle freely, and local residents take a walk after dinner. The Sloterplas appears to be one of the most popular places in Amsterdam. It is possible to have two cars at this location in Amsterdam, because there is still parking outside the complex.
Location
The apartment is easily accessible by both public transport and by car. Tram line 17 is just a five-minute walk or two-minute bike ride from the house. Bus lines 61 and 69 (to Schiphol Plaza) are also within walking distance, so you can be at Schiphol within 25 minutes. The A4, A9 and A10 motorways can be easily and quickly reached by car.
VvE and leasehold
The service costs for the VvE are €155 per month. The leasehold has been bought off perpetually.
Special Features:
- Extremely light and comfortable three-room apartment of 84 m2 (NEN 2580 measurement report available);
- All-round light and view;
- Spacious rooms with enough space for cupboards;
- Year of construction: 2007;
- Insulation: complete - Located in a beautiful green oasis;
- Own indoor parking space;
- Well-functioning homeowners' association, service costs per month: €155;
- Leasehold has been bought off perpetually;
- shops, entertainment and sports/recreation within walking distance;
- good accessibility by public transport.
Sales conditions:
The general terms and conditions of sale apply to this lot. You can also find this on the Bieden & Wonen website.
Carefully composed:
This advertising text has been compiled with the utmost care by our office based on the data and drawings provided to us by the seller. Therefore, we cannot provide any guarantees, nor can we accept any liability for this data in any way.
NEN-2580 standard:
The published surface area and measurements of this home have been compiled by an independent party in the form of a measurement report, in accordance with the NEN 2580 standard for surface measurements.