































P.M.R. Versteeghstraat 51, 1403RT Bussum, Netherlands
In de P.M.R. Versteeghstraat op nummer 51 ligt deze modern aangeklede en goed onderhouden hoekwoning met overkapping, voor- en achtertuin met vrijstaande garage en vrijstaande berging.
De ligging is in Bussum-Zuid, vlakbij het natuurgebied van de Bussummerheide (op ~750 m), dichtbij winkels (200m) en andere voorzieningen, zoals een sportterrein (800m) en wandelgebied. Station Bussum-Zuid en het centrum van Bussum zijn bereikbaar binnen 5 fietsminuten. De uitvalswegen A1, A6 en A27 liggen op 5 minuten met de auto.
Op het dak van de woning liggen 12 zonnepanelen, waarmee gemiddeld ongeveer 3500kWh kan worden opgewekt.
Indeling:
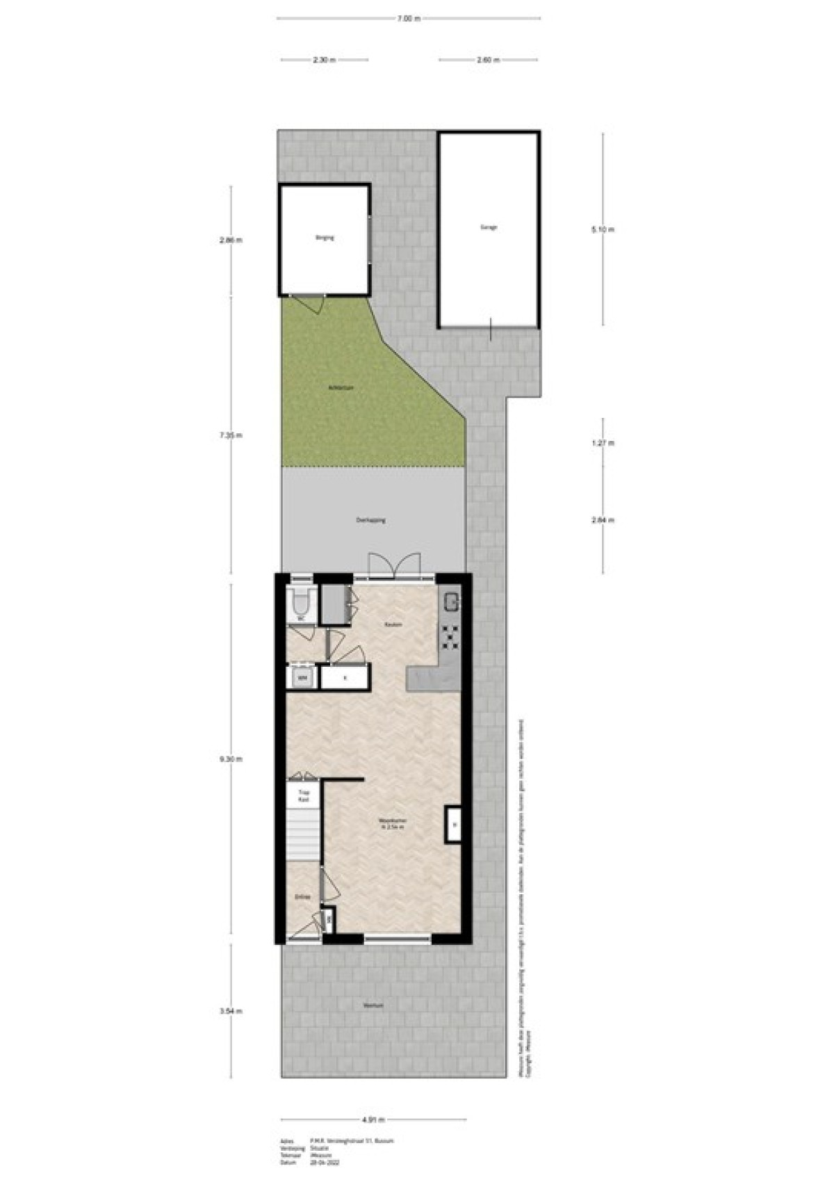
BEGANE GROND
Entree, hal, garderobe, meterkast. Voorts toegang tot de lichte woonkamer voorzien van vloerverwarming en verdiepte trapkast. Aan de tuinzijde de uitgebouwde keuken eveneens met vloerverwarming.
De keuken is voorzien van gas kookplaat, koelkast, combi-oven, vaatwasmachine, wasmachineaansluiting en voldoende kastruimte. Achter is ook het modern toilet en een fraai weggewerkte ruimte voor de wasmachine en droger. Alles achter een aparte toegangsdeur.
De dubbele openslaande deur in de keuken geeft toegang tot de heerlijke achtertuin, via de grote en robuuste overkapping.
EERSTE VERDIEPING
Overloop, een 1e slaapkamer aan de achterzijde met inbouwkasten en een 2e slaapkamer met inbouwkast aan de voorzijde. De badkamer is voorzien van inloopdouche en vaste wastafel plus hangend toilet.
TWEEDE VERDIEPING
Vaste trap naar de 2e verdieping, voorzien van een nokverhoging met grote dakkapel, waardoor er een goede slaapkamer is ontstaan en veel bergruimte.
De voorzolder heeft plek voor de cv-ketel (Nefit Topline uit 2008)
TUIN
De woning is gelegen op een ruim perceel met een heerlijke vrije achtertuin gesitueerd op het Noordwesten en een vrijstaande berging.
Ook op het terrein is een garage met elektrische garagedeur.
De smalle toegang verhindert het gebruik voor ene auto, maar opslag- en klusruimte genoeg!
De toegang naar de garage en naar achteren betreft eigen terrein met recht van overpad voor de buren om aan de achterzijde van hun woning te kunnen komen.
BIJZONDERE KENMERKEN
> Woonoppervlak 86m² NEN2580-gemeten
> Goed onderhouden lichte hoekwoning met ruime tuin
> Moderne keuken met inbouwapparatuur
> Garage voorzien van elektrische deur en nieuw dak
> Centrale ligging en op loopafstand van de natuur en winkels
> 12 zonnepanelen