This item is archived/sold and no longer available for bidding.

































































Postillonstraat 50, 4813EW Breda, Netherlands
LET OP: AANVRAGEN VOOR EEN BEZICHTIGING GRAAG VIA FUNDA/MAIL.
OPEN HUIS: 7 SEPT TUSSEN 16-18u. Graag van tevoren even aanmelden via Funda/mail.
INTRODUCTIE:
Deze instapklare halfvrijstaande karakteristieke woning in Princenhage is werkelijk een plaatje!
Deze jaren 30 woning met energielabel C is bijzonder sfeervol. Drie slaapkamers, een gezellige woonkamer met luxe open keuken, een prachtige badkamer en een gezellige achtertuin…deze woning heeft het allemaal!
De woning is gelegen in een sfeervolle straat met karakteristieke woningen, op loopafstand van twee basisscholen en een voetbalvereniging. De woning ligt op enkele minuten wandelen van de Haagsemarkt, de kern van Princenhage. Hier vind je diverse winkels voor de dagelijkse boodschappen en gezellige terrasjes.
In de straat en in de omgeving is er gratis parkeergelegenheid en vind je een bushalte om de hoek.
De wijk Princenhage organiseert diverse evenementen zoals De Tien van ’t Aogje, de Avondvierdaagse en de jaarlijkse vrijmarkt.
De binnenstad van Breda en het Centraal station is op fietsafstand gelegen. In de omgeving zijn sportvoorzieningen, het Mastbos en het Liesbos te vinden.
De woning is gunstig gelegen ten opzichte van de uitvalswegen richting Rotterdam, Antwerpen (A16), Utrecht (A27), Eindhoven en Bergen op Zoom (A58).
Persoonlijke note vanuit de verkopers;
“Toen we dit huis voor het eerst gingen bezichtigen viel het ons al op dat er zo’n fijne sfeer in zit, en ondanks dat het destijds aan weinig van onze eisen voldeed waren we meteen verkocht. Nadat we het huis met liefde en aandacht moderniseerden hebben we er met veel plezier gewoond. Waar we eerst onze bedenkingen hadden bij de badkamer op de begane grond zien we nu juist de meerwaarde hiervan in. Zo kunnen de kinderen in bad terwijl wij aan het koken zijn en hoeven ze het huis niet door als ze vies zijn van het buiten spelen ;) We hebben een prachtige tijd in dit huis gehad, met vele fijne herinneringen. Maar het avontuur roept. Wij gaan op reis en zullen ons gaan vestigen in het buitenland. We hopen dat de nieuwe eigenaren net zo verliefd op dit plekje zullen worden als wij destijds.”
Nieuwsgierig geworden? Laat je verrassen door deze woning en kom snel een kijkje nemen!
INDELING:
Begane grond;
De ontvangsthal zet qua afwerking direct de toon voor de rest van het huis. Overal zijn sfeervolle details aangebracht. Een speelse tegelvloer en lambrisering van hout. De authentieke stenen muur is voor een groot gedeelte zichtbaar gemaakt. En hoe leuk is het ronde raam met doorkijk naar de living! Vanuit de hal is de trap naar de eerste verdieping en de woonkamer te bereiken. De living is voorzien van een laminaat vloer en bestaat uit een zit en eetgedeelte met in het
midden een mooie houtkachel die letterlijk en figuurlijk voor een warme sfeer zorgt. De stenen schouw en het houten balken plafond maken het plaatje compleet.
Het eetgedeelte staat in open verbinding met de keuken.
De keuken is voorzien van een gietvloer, heeft een speelse indeling en is luxe uitgerust met diverse inbouwapparatuur. Je vindt hier een stoomoven, combimagnetron, vaatwasser, koelkast, gaskookplaat, afzuigkap en close in boiler. Vanuit de keuken is de zij-en achtertuin en badkamer te bereiken.
De badkamer is niet alleen stijlvol, maar ook heel praktisch ingedeeld met een ligbad, aparte inloopdouche, wastafelmeubel en toilet.
Vanuit de tuin is de bijkeuken te bereiken die momenteel als wasruimte en werkkamer in gebruik is.
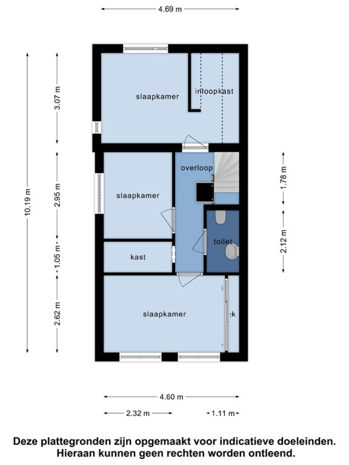
Eerste verdieping;
Via de vaste trap in de entree kom je uit op de overloop met laminaathouten vloer en airconditioning. Vanuit de overloop heb je toegang tot de bergzolder, toiletruimte en slaapkamers. Deze verdieping is in 2018 gerenoveerd en er is een opbouw geplaatst.
Met deze opbouw is een extra slaapkamer met inloopkast gecreëerd. Met ruim 14m² is dit een bijzonder ruime slaapkamer te noemen. Vanuit het raam heb je uitzicht op de achtertuin.
In het midden van de verdieping vind je de kleinste slaapkamer van circa 7m² met zijraam.
Aan de voorkant is een ruime slaapkamer van 12m² met ingebouwde kastenwand te vinden. Door de dubbele raampartij is er naast een ruime lichtinval ook de mogelijkheid om van deze ruimte twee slaapkamers te maken.
Alle slaapkamers zijn voorzien van vloerbedekking en tussen de voorste en middelste slaapkamer is nog een kleine verrassing te vinden.
Deze ruimte van bijna 2,5m² is momenteel als speelruimte in gebruik, maar kan ook als berging gebruikt worden of bij een van de slaapkamers betrokken worden (evt. als inloopkast).
In de royale toiletruimte is naast een toilet ook een wastafelmeubel aanwezig. Er is voldoende ruimte om eventueel i.p.v. de wastafel een douche te plaatsen.
Buitenruimte;
De zij/achtertuin is zowel vanaf de straatkant als via de keukenzijde te bereiken. Het is goed vertoeven in deze gezellige tuin met zowel een groenstrook als een bestraat terras. De tuin biedt daarnaast veel privacy.
BIJZONDERHEDEN:
- ruime karakteristieke halfvrijstaande jaren 30 woning met uitbouw en opbouw;
- gelegen in de geliefde wijk Princenhage;
- instapklaar;
- sfeervolle aankleding en inrichting;
- 3 (slaap)kamers met mogelijkheid tot 4;
- zowel luxe keuken als badkamer;
- bijkeuken met wasmachineaansluiting;
- gezellige zij/achtertuin met veel privacy;
- energielabel C;
- (met uitzondering van de keuken) dubbel glas;
- voorgevel voorzien van kunststof kozijnen;
- basisscholen, sportverenigingen, winkels en horeca op loopafstand;
- NS station en centrum op fietsafstand;
BEZICHTIGINGEN EN BIEDINGEN:
De bezichtigingen vinden op afspraak plaats.
Bieden en wonen verkoopt deze woning via een transparant biedproces. Alle biedingen van kandidaat-kopers worden automatisch vastgelegd in een geanonimiseerd biedlogboek. Het biedlogboek bevat alle biedingen met tijdstip van ontvangst en eventuele voorbehouden.
Tijdens de bezichtiging zullen wij je uitgebreid informeren over de werking van onze biedingsprocedure.
Op de Bieden en Wonen website kun je additionele informatie inzien of downloaden. Informatie over het biedproces wordt getoond op de website van Biedenenwonen.nl
Deze tekst is door ons kantoor met de meeste zorg samengesteld aan de hand van de door de verkoper aan ons ter hand gestelde gegevens en tekeningen. Derhalve kunnen wij geen garanties verstrekken, noch kunnen wij op enigerlei wijze eventuele aansprakelijkheid voor
deze gegevens aanvaarden.