This item is archived/sold and no longer available for bidding.



































































Scherpenzeelseweg 2, 3953MB Maarsbergen, Netherlands
Vriendelijk verzoek om via Funda te reageren voor een bezichtiging in te plannen!
Betoverende villa te koop aan de Scherpenzeelseweg 2, te Maarsbergen!
Deze vrijstaande, monumentale villa is gelegen op een royaal perceel van 2820 m2, weg van de drukte.
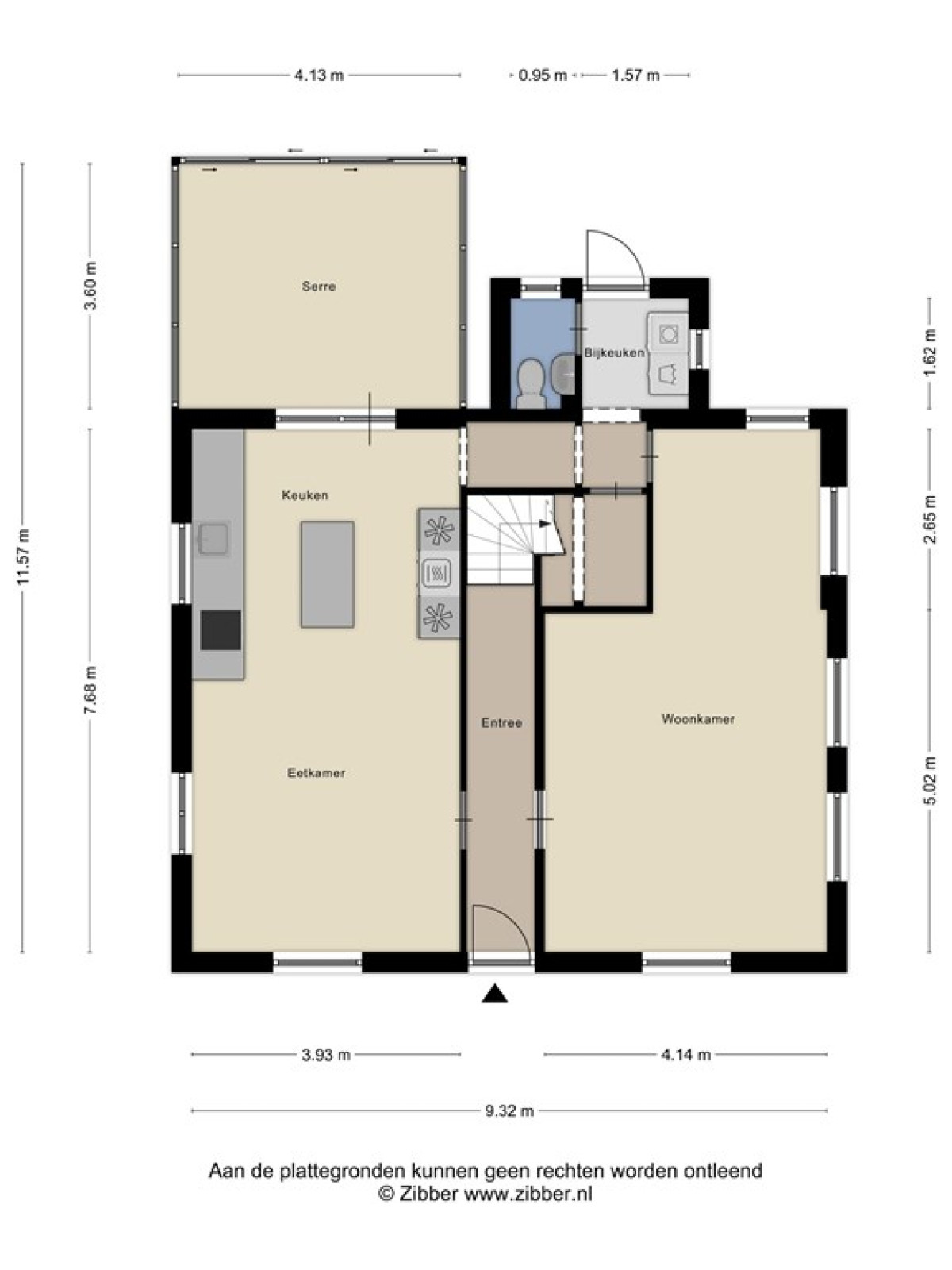
Binnen vindt u een ruim woonoppervlak van ca.137m2, verdeeld in een lichte, sfeervolle woonkamer en een knusse keuken, compleet met moderne apparatuur, waaronder een 5-pits gaskookplaat en oven.
De begane grond biedt ook toegang tot een zonnige serre van ca 15 m2, waardoor u het hele jaar door kunt genieten van uw tuin.
Bijzonderheden:
- Vrijstaande monumentale villa;
- Zonnige serre;
- 4 slaapkamers;
- Eigen carport voor 2 auto's;
- Energielabel; D
- Omgeven tuin, met eigen bos perceel & moestuin;
- Weide met chalet/stal voor dieren alsmede een aan 1 zijde open opslagloods
-13 zonnepanelen; 2021 met een capaciteit van ca 4.000 kWh
- Ruime kelder/wijnkelder;
- Woonoppervlakte 137m2 + serre van 15m2 (NEN meetrapport aanwezig);
- Perceel van 2820M2;
- Volle eigendom.
Het huis heeft vier royale slaapkamers op de bovenverdieping en een moderne badkamer met vloerverwarming. Bovendien is er een ruime kelder met een vloer van originele kloostermoppen, ideaal als wijnkelder.
De villa is omgeven door een prachtige tuin, aan de rechterzijde voorzien van een eigen bosperceel en een moestuin van maar liefst 80m2. Met een doordacht tuinontwerp is er altijd een plekje in de zon of schaduw te vinden. Naast een overkapte carport geschikt voor 2 auto's en een motorfiets is er nog een open schuur om zaken op te slaan, of bijvoorbeeld een aanhanger of camper te stallen.
Naast de woning is een perceel weidegrond, met een chalet/stal waar je gemakkelijk schapen, geitjes of een pony kunt houden en nog een houten berging
De woning is energiezuinig dankzij 13 zonnepanelen, geïnstalleerd in 2021, met een opbrengst van ca. 4000 kWh. Het is een turn-key woning, klaar om u te verwelkomen!
Maarsbergen is onderdeel van de Gemeente Utrechtse Heuvelrug, een gebied vol actie, ontspanning en natuur. Ontdek de indrukwekkende kastelen en landgoederen, geniet van de gastvrijheid van de lokale bevolking, en ervaar de toewijding aan natuurbehoud. Dagelijkse boodschappen doet u gemakkelijk in Maarn, en voor een breder winkelaanbod kunt u terecht in Veenendaal, Zeist.
Uw boodschappen laten bezorgen is ook geen probleem, met keuze uit Jumbo, AH of Plus die dit verzorgen.
Deze woning profiteert van een centrale ligging: het treinstation van Maarn brengt u in slechts 15 minuten naar Utrecht CS, en de A12 is binnen 5 minuten te bereiken. Vanuit huis bent u in 20 minuten in Utrecht of Amersfoort.
Als kers op de taart wordt momenteel over de provinciale weg N226 een ecoduct aangelegd, dit ecoduct draagt bij aan het behoud van de natuur. "Ecoduct Maarsbergen", gepland voor voltooiing in 2025, zal het leefgebied van vele diersoorten verbinden, waardoor ze veilig kunnen oversteken en de biodiversiteit kan toenemen.
Ontdek deze droomwoning vandaag nog!
De algemene verkoop voorwaarden zijn van toepassing op deze kavel. Deze vindt u tevens terug op de website van Bieden & Wonen.
Bied datum- en tijd
Op de pagina van de betreffende woning op de Bieden en Wonen website vind je de begin- en eindtijd van de biedronde.
Zorgvuldig samengesteld:
Deze advertentietekst is door ons kantoor met de meeste zorg samengesteld aan de hand van de door de verkoper aan ons ter hand gestelde gegevens en tekeningen. Derhalve kunnen wij geen garanties verstrekken, noch kunnen wij op enigerlei wijze eventuele aansprakelijkheid voor deze gegevens aanvaarden.