This item is archived/sold and no longer available for bidding.




























Sichemstraat 5, 3061KR Rotterdam, Netherlands
Bezichtigingen graag via Funda aanvragen a.u.b.
In het populaire Kralingen is dit leuke appartement op slechts 100 meter van De Kralingse Plas en het Kralingse Bos gelegen, ruim en licht, 3 kamer appartement met 2 balkonnetjes en royale berging in de kelder. Onderdeel uitmakend van een goed onderhouden en rijksmonumentaal complex uit de jaren 30 naar architectuur van W.H. Ten Bosch.
Prima ligging in een autoluwe straat in Kralingen nabij de Erasmus Universiteit, winkels/restaurants aan de Oudedijk/Lusthofstraat, openbaar vervoer en op fietsafstand van het centrum van Rotterdam.
Bereikbaarheid: goede verbinding naar uitvalswegen A16 en A20, nabij tram en metro. Op 10 min. fietsafstand van het centrum van Rotterdam.
Voorzieningen: Op loopafstand van AH, Hema, visboer, restaurants op de Oudedijk, Jordy’s Bakery en The Boathouse. Op fietsafstand van de gezellige Lusthofstraat met een variëteit aan supermarkten en speciaalzaken.
Recreatie: Op loopafstand (ca. 100m!) van Kralingse Plas/Bos met in de directe omgeving sportverenigingen (o.a. hockey, tennis, atletiek, zeilen en golf).
Scholen: Op fietsafstand van de Erasmus Universiteit, loopafstand van scholen en kinderopvang.
INDELING
Begane grond: Toegang tot het fraaie, typische jaren 30 portiek.
1e etage: Eigen entree, vestibule, hal/gang met toilet en meterkast.
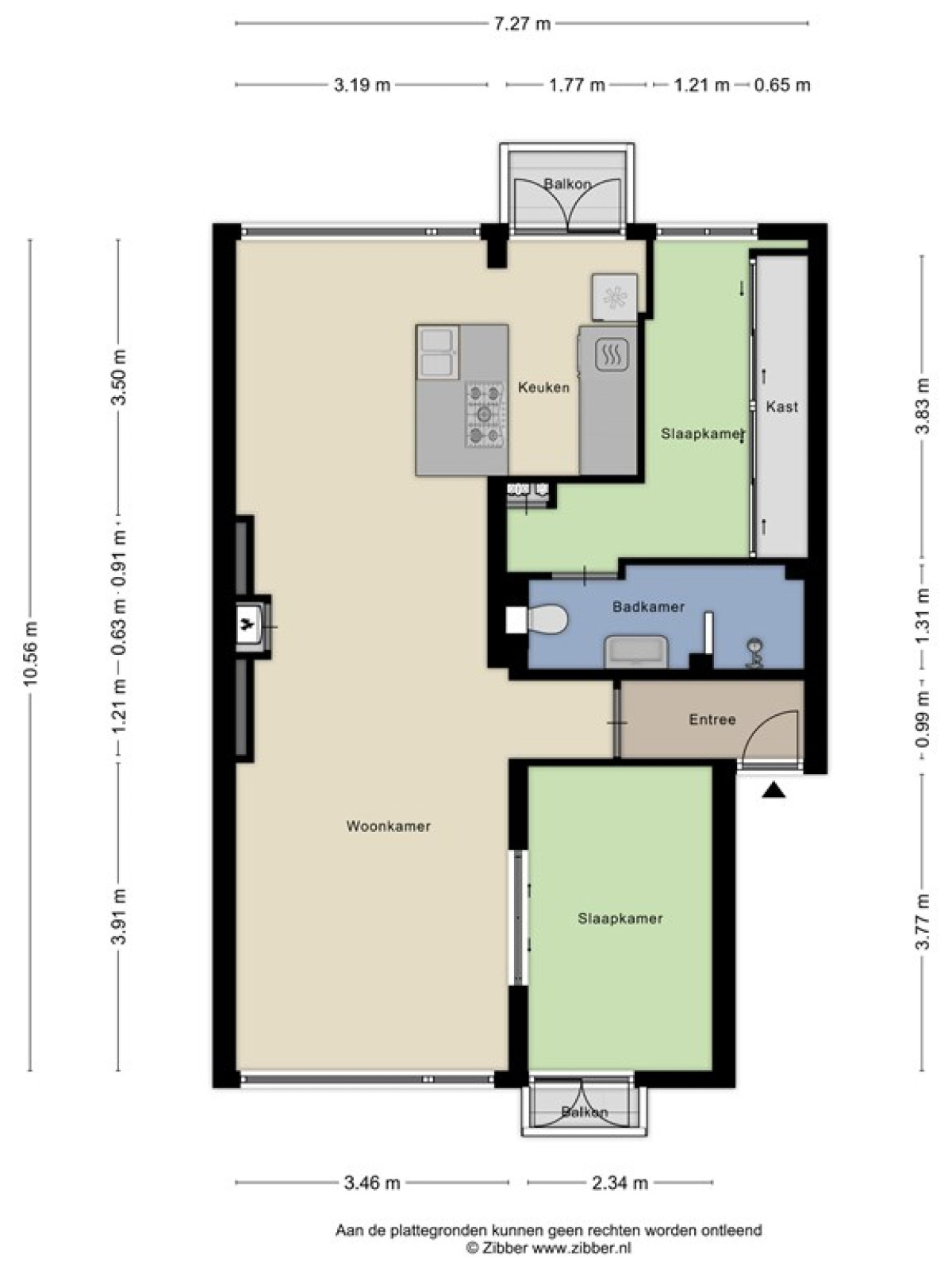
Ruime woonkamer voorzien van een fraaie eiken plankenvloer met aansluitend een zijkamer met schuifdeuren en een klein Frans balkon aan de voorzijde (West). Deze zijkamer wordt nu gebruikt als slaapkamer. De keuken met openslaande deuren naar 2e balkon aan de achterzijde is voorzien van een kookeiland met aanrechtblad van Belgisch hardsteen en SMEG fornuis met visbrander. Nog een kleinere slaap/werkkamer voorzien van royale schuifkastenwand en apart een ruime badkamer met mozaïek tegelwerk met wastafel, toilet, designradiator en ruime douche.
Bijzonderheden:
- monument en monumentaal pand
- geen energielabel verplicht
- licht 3 kamer appartement met 2 zonnige balkonnetjes en zeer royale berging in de kelder (circa 16m2).
- prima lichtinval door grote raampartijen en geheel voorzien van dubbele beglazing.
- extern goed onderhouden door Actieve en financieel gezonde Vereniging van Eigenaren met onderhoudsreservering -
- vve bijdrage ca. € 106,- per maand.
- actieve vve met 6 leden -
- dak is in 2015 vernieuwd.
- parkeervergunning circa 9,- per maand.
Deze woning is een rijksmonument. Rijksmonumenten zijn vrijgesteld van een energielabel en hebben subsidiemogelijkheden voor het onderhoud. Rijksmonument naar Nieuw Zakelijk ontwerp van W. Th. ten Bosch. Het woonblok is in Nieuw Zakelijke trant uitgevoerd en voorbeeld van vroege open strokenverkaveling. Van algemeen belang wegens stedenbouwkundige- en architectuurhistorische waarde. (bron: Rijksdienst voor het Cultureel Erfgoed).
Verkoopvoorwaarden: De algemene verkoop voorwaarden zijn van toepassing op deze kavel. Deze vindt u tevens terug op de website van Bieden & Wonen. Bied datum- en tijd Op de pagina van de betreffende woning op de Bieden en Wonen website vind je de begin- en eindtijd van de biedronde.
Biedvoorwaarden: De algemene biedvoorwaarden zijn van toepassing op dit object. Deze kan je inzien tijdens het registreren als bieder op de website: Bieden en Wonen.
Zorgvuldig samengesteld: Deze advertentietekst is door ons kantoor met de meeste zorg samengesteld aan de hand van de door de verkoper aan ons ter hand gestelde gegevens en tekeningen. Derhalve kunnen wij geen garanties verstrekken, noch kunnen wij op enigerlei wijze eventuele aansprakelijkheid voor deze gegevens aanvaarden.
NEN-2580 normering: De gepubliceerde oppervlakte en metrages van deze woning zijn door een onafhankelijke partij samengesteld in de vorm van een meetrapport, conform de NEN 2580 normering voor oppervlakte metingen.