This item is archived/sold and no longer available for bidding.

















































This document is received by the owner of the property from the municipality for the payment of specific taxes.
This document is the document that the owner of the registered property is required to provide before the transfer.
The title deed from the Dutch Land Registry (Kadaster) is an official document that proves who the legal owner is of a piece of real estate (such as a house, plot of land, or building) in the Netherlands.
The measurement report in accordance with NEN 2580 provides the surface area and volume of a home or building based on a fixed Dutch standard. This ensures clear and comparable measurements.
A Deed of Division is a legal document that divides a property into separate parts or units, each with its own ownership rights.
This refers to the official paperwork of the Homeowners Association. The recent minutes are the written records of the latest meetings, summarizing discussions and decisions made.
The Inventory of Fixtures and Fittings lists which items stay or go with the property sale. It ensures buyer and seller agree on what’s included.
This is the second part of the standard questionnaire completed during the sale of an apartment. This section includes questions about the Homeowners Association (VVE).
The deed of grant of leasehold is a notarial deed that gives someone the right to use a piece of land, while the land remains owned by, for example, the municipality. Only for properties where ground lease applies.
Stadhouderskade 137, 1074AZ Amsterdam, Netherlands
**Prachtig Historisch Herenhuis met Ruim Dakterras in Het Centrum van Amsterdam!**
Welkom op de Stadhouderskade 137 2 hoog, gelegen in het bruisende hart van Amsterdam, in de geliefde wijk De Pijp, op het randje van het centrum. Dit statige herenhuis biedt een unieke kans om te wonen in een van de meest iconische en historische delen van de stad.
Gebouwd in 1882 in een eclectische bouwstijl, straalt dit huis karakter en charme uit, met prachtige details die de rijke geschiedenis van Amsterdam weerspiegelen. Geniet van het spectaculaire uitzicht op de Singelgracht en de Stadhouderskade aan de voorzijde, en een vrij uitzicht op de Hemonylaan aan de achterzijde.
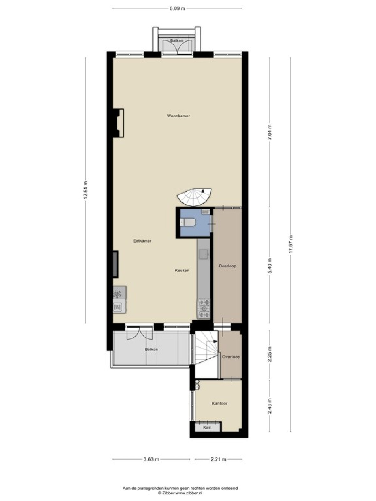
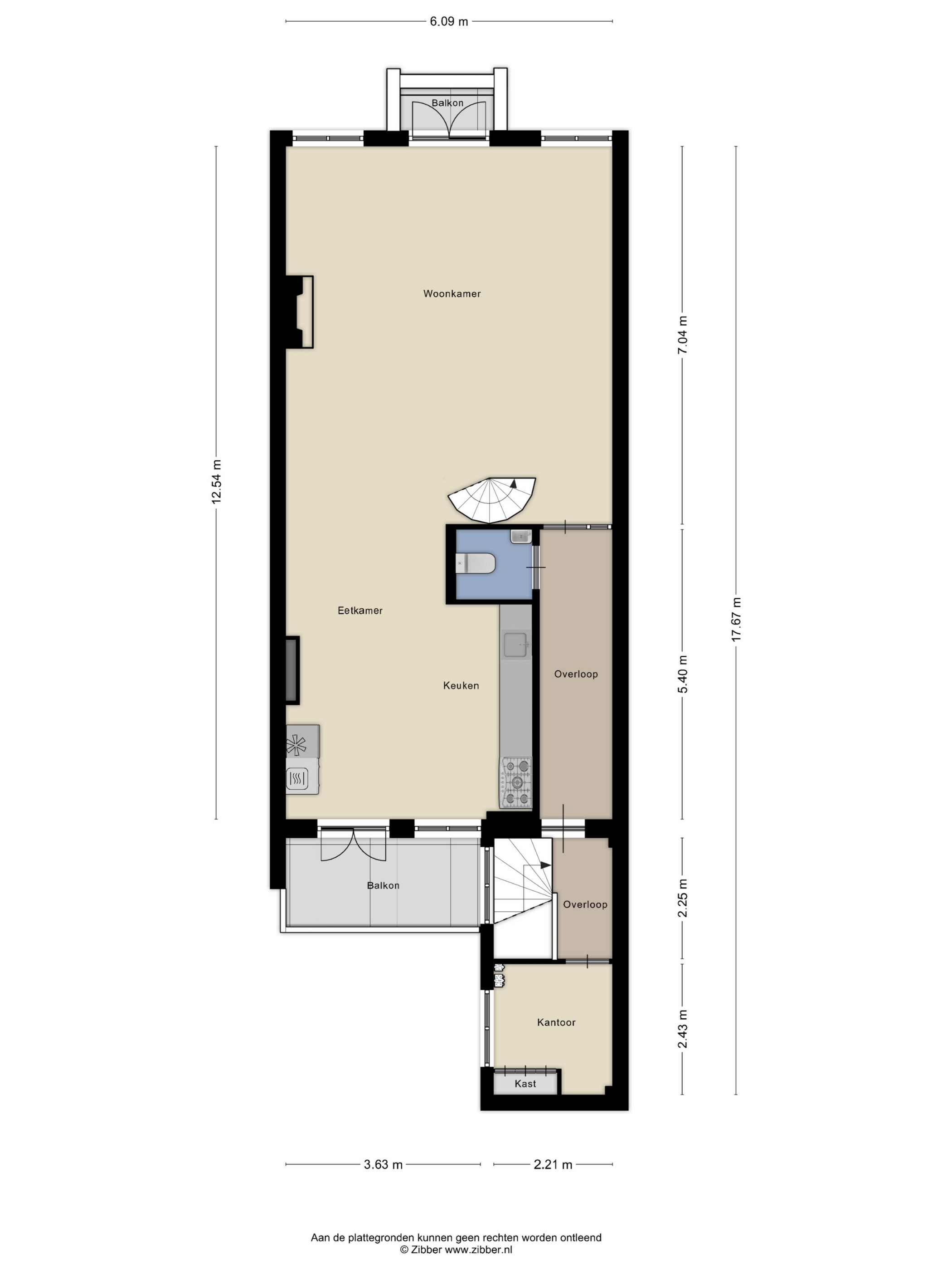
Indeling:
Met een ruime oppervlakte van 161 m2 biedt dit huis volop leefruimte voor comfortabel wonen. De zeer ruime woonkamer en keuken zijn voorzien van grote ramen aan beide zijden, waardoor het huis baadt in natuurlijk licht en een gevoel van ruimte en openheid creëert. Stap naar buiten op een van de balkons aan de voor- en achterzijde of geniet van het prachtige dakterras, perfect voor ontspanning en entertainment.
Dit huis beschikt ook over een klein kantoor, ideaal voor thuiswerken of studeren, en een gezellige openhaard voor extra sfeer tijdens de koudere maanden. Boven vind je twee slaapkamers, elk met een eigen badkamer, volledig gerenoveerd in 2020 voor modern comfort en gemak. Tevens is er nog een walking closet kamer welke ook als derde slaapkamer kan fungeren.
Ligging:
Met een gunstige ligging nabij de s112 voor eenvoudige toegang tot de A10-snelweg. Bovendien bevind je je op loopafstand van het wereldberoemde Rijksmuseum en de oude Heineken Brouwerij, en tegenover de prachtig gerenoveerde Nederlandse Bank.
Dit huis is gelegen op eigen grond en beide voor- en achterkant zijn in 2024 opnieuw geschilderd. Bovendien is de VvE gezond en actief en bestaat uit slechts 3 leden.
Extra kenmerken van dit huis zijn de krachtige hydrofoor voor goede waterdruk in de douches, overal dubbel glas voor uitstekende isolatie en een energierekening van slechts €100 per maand, waardoor het huis niet alleen comfortabel maar ook energiezuinig is.
Bijzonderheden:
* Bouwjaar: 1882, eclectische bouwstijl;
* Oppervlakte: 161 m2;
* Gelegen op eigen grond;
* Ruime woonkamer/keuken met grote ramen aan beide zijden;
* Balkon aan voor- en achterzijde;
* Klein kantoor;
* 3 slaapkamers met 2 badkamers (2020);
* Gelegen op eigen grond;
* Voorkant en achterkant geschilderd in 2024;
* Gezonde VvE, 177 euro per maand;
* Energierekening per maand 100 euro;
* Plannen voor zonnepanelen door VVE;
* Oplevering in overleg.
Mis deze kans niet om te wonen in een historisch herenhuis in het hart van Amsterdam! Neem vandaag nog contact met ons op voor meer informatie en een bezichtiging. We kijken ernaar uit om je te verwelkomen in jouw nieuwe thuis aan de Stadhouderskade.
Verkoopvoorwaarden:
De algemene verkoop voorwaarden zijn van toepassing op deze kavel. Deze vindt u tevens terug op de website van Bieden & Wonen.
Zorgvuldig samengesteld:
Deze advertentietekst is door ons kantoor met de meeste zorg samengesteld aan de hand van de door de verkoper aan ons ter hand gestelde gegevens en tekeningen. Derhalve kunnen wij geen garanties verstrekken, noch kunnen wij op enigerlei wijze eventuele aansprakelijkheid voor deze gegevens aanvaarden.
NEN-2580 normering:
De gepubliceerde oppervlakte en metrages van deze woning zijn door een onafhankelijke partij samengesteld in de vorm van een meetrapport, conform de NEN 2580 normering voor oppervlakte metingen.
Beautiful Historic Townhouse with Spacious Rooftop Terrace in the Heart of Amsterdam!
Welcome to Stadhouderskade 137, second floor, located in the vibrant heart of Amsterdam, in the beloved De Pijp neighborhood, on the edge of the city center. This stately townhouse offers a unique opportunity to live in one of the most iconic and historic parts of the city.
Built in 1882 in an eclectic architectural style, this house exudes character and charm, with beautiful details that reflect the rich history of Amsterdam. Enjoy the spectacular view of the Singelgracht and the Stadhouderskade at the front, and an unobstructed view of the Hemonylaan at the back.
Layout:
With a spacious area of 154 m2, this house offers plenty of living space for comfortable living. The very spacious living room and kitchen feature large windows on both sides, flooding the house with natural light and creating a sense of space and openness. Step outside onto one of the balconies at the front and back or enjoy the beautiful rooftop terrace, perfect for relaxation and entertainment.
This house also features a small office, ideal for working from home or studying, and a cozy fireplace for extra ambiance during the colder months. Upstairs, you will find two bedrooms, each with its own bathroom, fully renovated in 2020 for modern comfort and convenience. There is also a walk-in closet room that can serve as a third bedroom.
Location: Conveniently located near the s112 for easy access to the A10 highway. Additionally, you are within walking distance of the world-famous Rijksmuseum and the old Heineken Brewery, and opposite the beautifully renovated Dutch National Bank.
This house is situated on freehold land, and both the front and back were repainted in 2024. Moreover, the HOA is healthy and active, consisting of only three members.
Additional features of this house include a powerful hydrophore for good water pressure in the showers, double glazing throughout for excellent insulation, and an energy bill of only €100 per month, making the house not only comfortable but also energy-efficient.
Details:
* Year built: 1882, eclectic architectural style;
* Area: 154 m2;
* Located on freehold land;
* Spacious living room/kitchen with large windows on both sides;
* Balcony at the front and back;
* Small office;
* 2 bedrooms with 2 bathrooms (2020);
* Located on freehold land;
* Front and back repainted in 2024;
* Healthy HOA, €177 per month;
* Energy bill per month €100;
* Plans for solar panels by the HOA;
* Delivery in consultation.
Don't miss this opportunity to live in a historic townhouse in the heart of Amsterdam! Contact us today for more information and a viewing. We look forward to welcoming you to your new home at the Stadhouderskade.
Sales Terms: The general sales terms and conditions apply to this lot. These can also be found on the Bieden & Wonen website.
Carefully Compiled: This advertisement text has been carefully compiled by our office based on the information and drawings provided to us by the seller. Therefore, we cannot provide guarantees nor accept any liability for these details in any way.
NEN-2580 Standard: The published surface area and measurements of this property have been compiled by an independent party in the form of a measurement report, in accordance with the NEN 2580 standard for surface measurements.
4o