This item is archived/sold and no longer available for bidding.












































Suze Groenewegplantsoen 44, 1067DB Amsterdam, Netherlands
AANVRAGEN VOOR EEN BEZICHTIGING BIJ VOORKEUR VIA FUNDA/MAIL
Welkom bij dit ruime en lichte maisonette appartement, gelegen op de derde en vierde verdieping van het gerenommeerde flatgebouw "Parkzicht" aan de Suze Groenewegplantsoen 44 in Amsterdam. Deze woning biedt u de perfecte combinatie van rust, groen en nabijheid van het stadsleven.
Kenmerken van het Appartement:
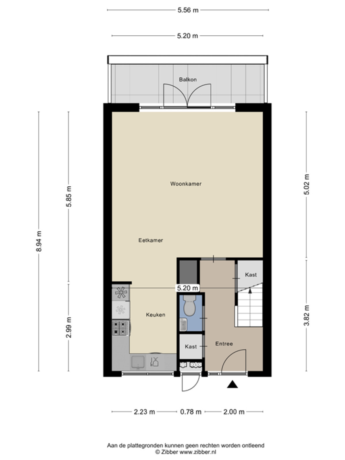
• Ruime Woonkamer met Balkon: De grote ramen zorgen voor veel lichtinval in de ruime woonkamer. Vanuit hier heeft u toegang tot het zonnige balkon op de derde verdieping, gelegen op het zuiden, waar u kunt genieten van het uitzicht over het Eendrachtspark.
• Energielabel A: Dit appartement is zeer energiezuinig dankzij het energielabel A, wat niet alleen goed is voor het milieu, maar ook zorgt voor lage energiekosten.
• Balkon op de Derde Verdieping: Naast de woonkamer bevindt zich een zonnig balkon op de derde verdieping, ideaal om van de buitenlucht te genieten en te ontspannen.
• Berging: Het appartement beschikt over een aparte berging op de begane grond, ideaal voor extra opslagruimte.
• Parkeren: Betaald parkeren is mogelijk op de parkeerplaats. U kunt parkeervergunningen regelen via het stadsdeel (€17,32 per 6 maanden), en er zijn gratis parkeermogelijkheden voor bezoekers (max. 150 uur per kwartaal). Op de parkeerplaats zijn enkele laadpalen voor elektrische auto’s aanwezig.
• Onderhoud: De buitenkozijnen, ramen en deuren van het appartement zijn in 2023 volledig geschilderd, wat zorgt voor een frisse en moderne uitstraling.
Financiële Informatie:
• Waterschapsbelastingen: €378,31 per jaar (2023).
• Gemeentelijke Belastingen: €849,75 per jaar.
• Erfpacht: De voortdurende erfpacht is afgekocht voor 50 jaar vanaf 1994, met nog 20 jaar resterend.
• VVE Servicekosten: €217,76 per maand.
Over het Flatgebouw “Parkzicht”:
Flatgebouw "Parkzicht" staat bekend om zijn rustige en groene omgeving, gecombineerd met uitstekende bereikbaarheid naar het centrum van Amsterdam. Het gebouw is goed onderhouden en ligt op korte afstand van diverse voorzieningen zoals winkels, restaurants en openbaar vervoer. Plein ’40 – ’45 en Lambertus Zijlplein met hun uitgebreide winkelaanbod en markten zijn op korte afstand bereikbaar.
Extra Voordelen:
• Ligging: Gevestigd in een populaire wijk met een breed scala aan voorzieningen in de directe omgeving. De winkelcentra Plein '40-'45, inclusief een levendige markt, en het Lambertus Zijlplein bevinden zich vlakbij.
• Openbaar Vervoer: Er zijn directe busverbindingen naar Station Sloterdijk, Centraal Station en Osdorpplein, waar u tevens een aantrekkelijk winkelcentrum vindt.
• Auto: Vanuit het appartement heeft u uitzicht op de Haarlemmerweg (N200) aan de noordzijde, die u eenvoudig toegang biedt tot de rest van de stad en daarbuiten.
• Veiligheid: Het flatgebouw is uitgerust met effectieve beveiligingssystemen, zodat u zich altijd veilig en beschermd voelt.
Bezichtiging Plannen:
Bent u geïnteresseerd in dit appartement? Plan eenvoudig online een bezichtiging via Bieden & Wonen. Klik op "Plan een Bezichtiging" in de Funda-advertentie en ontvang direct een e-mail om een afspraak in te plannen. Liever telefonisch contact? Bel ons gerust op het vermelde nummer. Bezichtigingen zijn enkel mogelijk binnen de vooraf bepaalde tijdslots van de makelaar, omdat wij rekening dienen te houden met de wensen van de verkoper.