This item is archived/sold and no longer available for bidding.



































Visserstraat 33, 4651BH Steenbergen, Netherlands
LET OP: AANVRAGEN VOOR EEN BEZICHTIGING BIJ VOORKEUR VIA FUNDA/MAIL.
INTRODUCTIE:
In hartje Steenbergen en in een van de leukste straatjes van Steenbergen, vind je deze charmante woning uit 1903. Een karakteristieke woning, maar wel met energielabel C!
Een knusse zithoek, leefkeuken, moderne badkamer, bijkeuken, 2 ruime slaapkamers en achtertuin met schuur en achterom…..dit huis heeft het allemaal.
Steenbergen is een oude vestingstad en maakt onderdeel uit van de West Brabantse Waterlinie. Dit sfeervolle stadje is centraal gelegen ten opzichte van Rotterdam (de Randstad) , Zeeland en Antwerpen. Met zijn ideale, maar toch rustige ligging in het centrum van Steenbergen, dicht bij winkels, restaurants en andere voorzieningen, biedt Visserstraat 33 de perfecte combinatie van rustig wonen en stedelijke gemakken.
Dus (her)starters grijp je kans en meld je snel aan voor het plannen van een bezichtiging van deze geweldige woning!
INDELING:
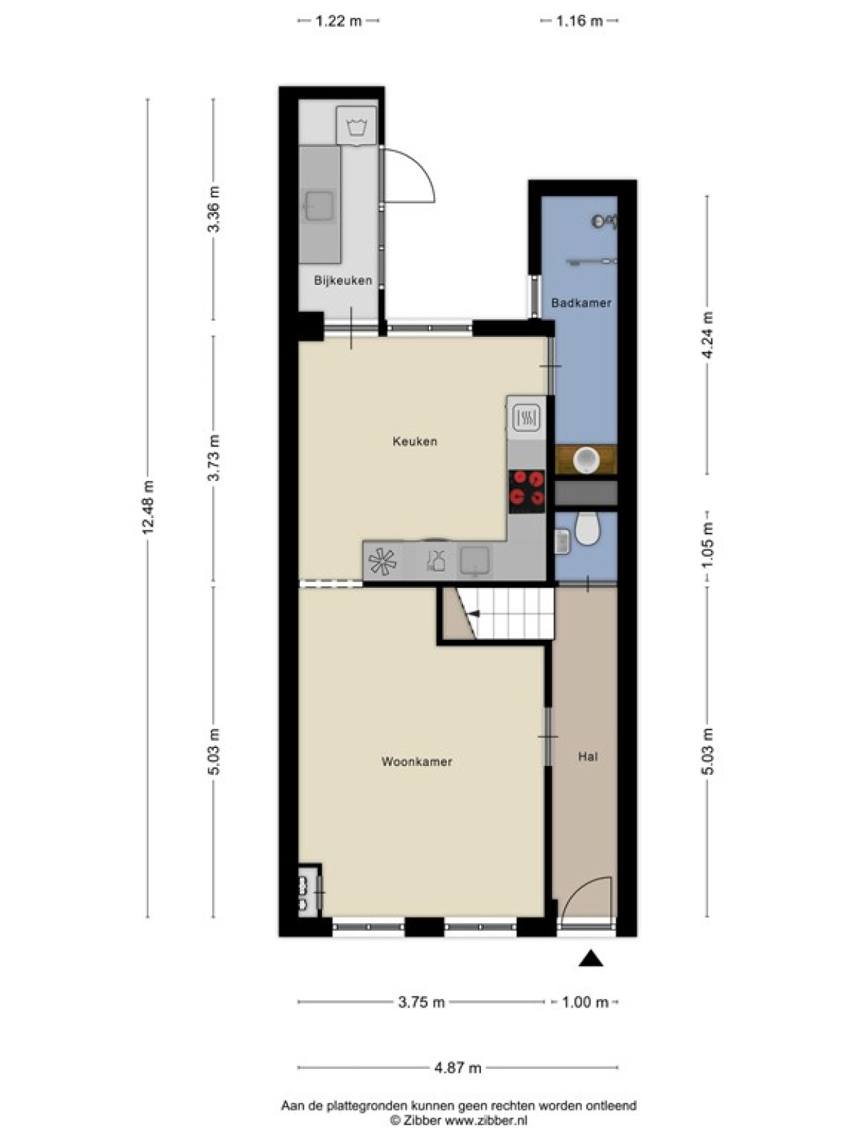
Begane grond;
Via de voordeur stap je de hal binnen waar het toilet, de trapopgang naar de eerste verdieping en de deur naar de woonkamer te vinden zijn.
Het volledig betegeld toilet is uitgerust met een hangtoilet en fonteintje.
Als je de woonkamer binnen stapt, wordt je verrast door een sfeervolle living met grote raampartij en houten vloer die doorloopt in de keuken. De woonkamer staat in open verbinding met de keuken.
Ook de leefkeuken is voorzien van een grote raampartij en biedt uitzicht op de achtertuin. De keuken is uitgerust met een oven, keramische kookplaat, afzuigkap, koelkast, en een vaatwasser. De keuken is groot genoeg voor een zithoek. Zie jij jezelf hier al kokkerellen of gezellig tafelen? Vanuit de keuken is de badkamer en bijkeuken te bereiken.
De moderne en volledig betegelde badkamer is heel sfeervol o.a door de speelse tegelwand in de inloopdouche en het mooie wastafelmeubel. De elektrische vloerverwarming voorkomt koude voeten na het douchen.
De praktische bijkeuken is voorzien van een keukenblok met gootsteen. Daarnaast vind je hier de wasruimte en deur naar de achtertuin.
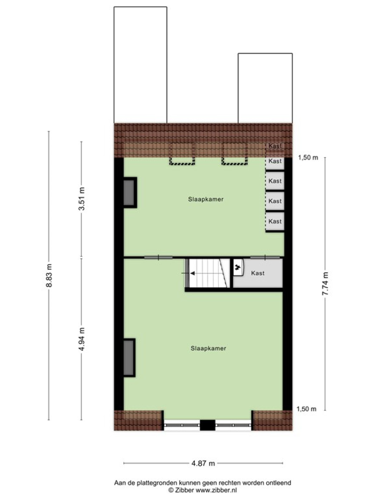
Eerste verdieping;
Via de trapopgang bereik je de 2 ruime slaapkamers op de eerste verdieping.
Het licht, de schuine wanden en houten balken zorgen voor een gezellige en aangename sfeer in de slaapkamers.
Op de vloer ligt een laminaatvloer en in de achterste slaapkamer vind je in de inbouwkast de cv opstelling.
Buitenruimte;
De achtertuin met achterom is volledig bestraat en onderhoudsvrij. Er is hier altijd wel een plekje in de zon te vinden. Of je nou wil relaxen of barbecueën, in deze fijne achtertuin kan het allemaal.
De ruime berging over de volledige breedte van de achtertuin biedt veel opbergruimte. Vanuit de berging is de achterom te bereiken.
BIJZONDERHEDEN:
• Tussenwoning;
• Hartje centrum in een rustige straat;
• Bouwjaar 1903;
• Karakteristieke en charmante uitstraling;
• Woonkeuken;
• Moderne badkamer;
• Bijkeuken met wasruimte;
• 2 ruime slaapkamers;
• Achtertuin met berging en achterom
• Energielabel C.
BEZICHTIGINGEN EN BIEDINGEN
De bezichtigingen vinden op afspraak plaats.
Bieden en wonen verkoopt deze woning via een transparant biedproces.
Alle biedingen van kandidaat-kopers worden automatisch vastgelegd in een geanonimiseerd biedlogboek. Het biedlogboek bevat alle biedingen met tijdstip van ontvangst en eventuele voorbehouden.
Tijdens de bezichtiging zullen wij je uitgebreid informeren over de werking van onze biedingsprocedure.
Op de Bieden en Wonen website kunt je additionele informatie inzien of downloaden.
Informatie over het biedproces wordt getoond op de website van Biedenenwonen.nl
Deze tekst is door ons kantoor met de meeste zorg samengesteld aan de hand van de door de verkoper aan ons ter hand gestelde gegevens en tekeningen. Derhalve kunnen wij geen garanties verstrekken, noch kunnen wij op enigerlei wijze eventuele aansprakelijkheid voor deze gegevens aanvaarden.