














































Westzijstraat 10, 4671CG Dinteloord, Netherlands
AANVRAGEN VOOR EEN BEZICHTING BIJ VOORKEUR VIA FUNDA/MAIL
INTRODUCTIE:
Droom jij van een ruime loods/garage voor werk/hobby of een winkel aan huis? Of zou je graag een kangoeroewoning willen realiseren? Grijp dan deze unieke kans!
Beneden een ruimte van maar liefst 127m² met aan 2 kanten een garagedeur die hoog genoeg is voor o.a. een camper of bus.
Wonen doe je boven met een vloeroppervlakte van 242m². Op het dakterras van maar liefst 50m² is het heerlijk vertoeven. Aan privacy geen gebrek, dus je kun hier heerlijk genieten van de rust en ruimte. De winkels zitten om de hoek dus je bent in de Westzijstraat van alle gemakken voorzien!
Dinteloord is een waterrijk plattelandsdorp, aan de rand van de Brabantse Wal met een directe afslag vanaf de snelweg A4. De winkels, (hotel)restaurants, cafetaria’s en overige ondernemingen bevinden zich allemaal in het Hart van Dinteloord. In dit dorpscentrum aan het Raadhuisplein en rondom de Kreek zit naast een Albert Heijn en een Action een rijk aanbod aan kleinere ondernemers. Alles binnen loopafstand van de haven.
Persoonlijke note van de verkopers:
"Waarom verhuizen na 38 jaar?
Na 38 jaar met veel plezier in ons huis in Dinteloord te hebben gewoond, gaat er voor ons een nieuwe fase in ons leven beginnen. Allebei boven de zestig is het tijd om onze droom te beginnen door te gaan reizen.
Het huis gaan we missen; het is altijd heel goed voor ons geweest en we hebben er fijne tijden beleefd. Maar nu is het tijd voor nieuwe waarschijnlijk jongere bewoners om hier een fijn leven te gaan ervaren.
We hebben genoten van ons privé dakterras en de kas met onze mooie planten, bloemen, lekkere komkommers en courgettes. Ook hebben we genoten van de heerlijke ochtendzon, het ruime uitzicht voor op de straat, de grote garage waar we droog onze boodschappen uit de auto konden halen en waar de campers, caravans en autos een plekje in hadden, zo’n fijne ruimte!
Het leven in een gemoedelijk dorp als Dinteloord waar we met een gerust gevoel 's avonds op straat een rondje om kunnen maken, onze grandioze fijne buren rondom ons heen, de winkels op loopafstand, dat gaan we uiteraard missen.
Maar het reizen trekt, en we zijn klaar voor nieuwe avonturen en ervaringen. Ik hoop dat de nieuwe bewoners net zoveel geluk en voorspoed in dit huis gaan ervaren als wij".
Nieuwsgierig geworden wat deze bijzondere woning jou te bieden heeft? Kom dan snel kijken!
INDELING:
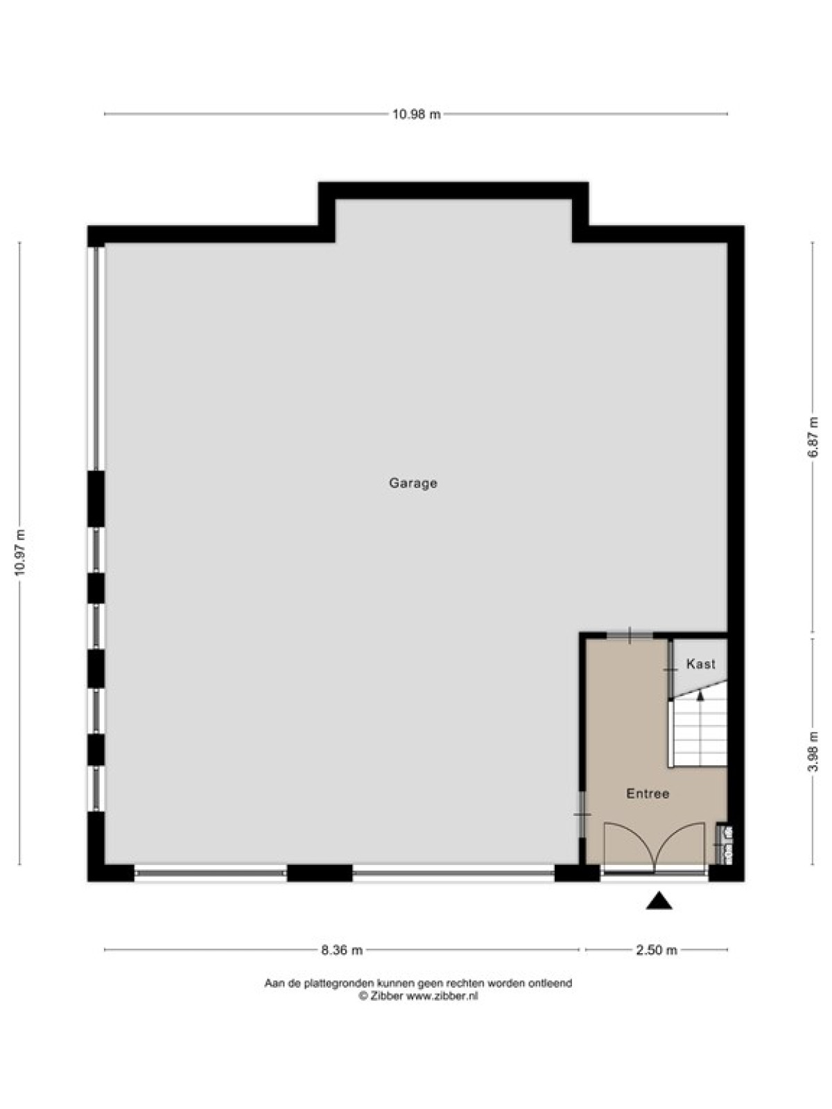
Begane grond;
Je betreed de woning via de dubbele voordeur en komt binnen in de hal. Vanuit de hal is de meterkast, trapopgang naar de eerste verdieping en de deur naar de garage/loods te bereiken.
Als je deze ruimte binnenstapt word je verrast door zeeën aan ruimte. Met aan 2 zijden een elektrische roldeur (h3,20mxb3,50m en h3,00mxb3,90m) is het makkelijk in en uit rijden met zowel een auto als bijvoorbeeld een bus of camper. Je kunt hier meerdere voertuigen kwijt maar ook voor opslag is meer dan ruimte genoeg. Deze ruimte biedt diverse mogelijkheden voor werk en/of hobby aan huis.
Detailhandel is tevens toegestaan. Op grond van het omgevingsplan kun je een winkel beginnen.
Daarnaast biedt de begane grond mogelijkheden om de woning levensloopbestendig te maken door een kangoeroewoning / mantelzorgwoning te realiseren.
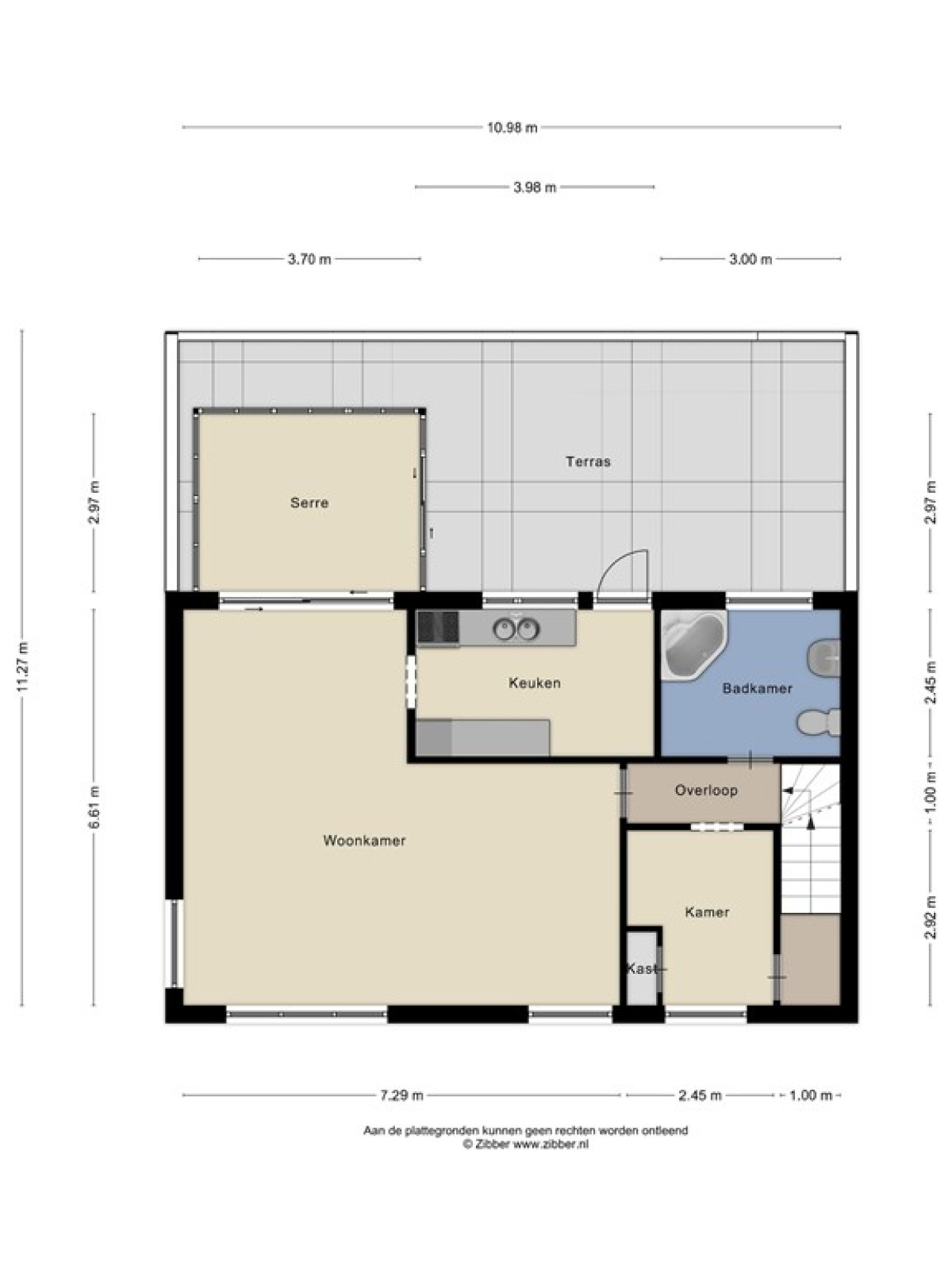
Eerste verdieping;
Op de eerste verdieping bereik je de overloop van waaruit je het woongedeelte en een aparte kamer kunt bereiken.
In deze kamer is een inbouwkast te vinden en een deur met de trapopgang naar de tweede verdieping. Deze kamer kan bijvoorbeeld gebruikt worden als kantoor, speelruimte of inloopkast.
De woonkamer is L vormig en verrassend ruim (38m²). Vanuit de woonkamer is de keuken en het dakterras te bereiken.
De keuken heeft aan weerszijden een rechte opstelling en is aan modernisatie toe. Het raam biedt uitzicht op het dakterras.
Op de eerste verdieping is ook de badkamer te vinden met douchehoek, hoekbad, toilet en wastafel.
Tweede verdieping;
Op de tweede verdieping is het slaapgedeelte te vinden. Deze verdieping is in verschillende ruimtes ingedeeld waar naar eigen wens diverse slaapkamers gerealiseerd kunnen worden.
Buitenruimte;
Het dakterras (50m²) loopt over de volle lengte van de woning en heeft geen inkijk. Het terras is gelegen aan de achterkant, waardoor je veel rust ervaart. Als het regent en/of koud is, kun je in de serre toch fijn zitten, waardoor je dus vrijwel het hele jaar met veel plezier van je dakterras kunt genieten....genieten met een grote 'G'!
BIJZONDERHEDEN:
-Vrijstaande woning;
-In het centrum van Dinteloord;
-Grote garage/loods (127m²) met ruimte voor meerdere voertuigen en/of opslag;
-Mogelijkheden voor werk/hobby/winkel aan huis;
-Mogelijkheden voor een kangoeroewoning;
-Bouwjaar 1970;
-Groot dakterras met veel privacy;
-L vormige ruime woonkamer;
-Mogelijkheden om meerdere slaapkamers op de tweede verdieping te realiseren;
-Energielabel F.
BEZICHTIGINGEN EN BIEDINGEN:
De bezichtigingen vinden op afspraak plaats.
Bieden en wonen verkoopt deze woning via een transparant biedproces.
Alle biedingen van kandidaat-kopers worden automatisch vastgelegd in een geanonimiseerd biedlogboek. Het biedlogboek bevat alle biedingen met tijdstip van ontvangst en eventuele voorbehouden.
Tijdens de bezichtiging zullen wij je uitgebreid informeren over de werking van onze biedingsprocedure.
Op de Bieden en Wonen website kun je additionele informatie inzien of downloaden.
Informatie over het biedproces wordt getoond op de website van Biedenenwonen.nl
Deze tekst is door ons kantoor met de meeste zorg samengesteld aan de hand van de door de verkoper aan ons ter hand gestelde gegevens en tekeningen. Derhalve kunnen wij geen garanties verstrekken, noch kunnen wij op enigerlei wijze eventuele aansprakelijkheid voor deze gegevens aanvaarden.