This item is archived/sold and no longer available for bidding.






























































Gravinnelaan 3, 3905HG Veenendaal, Netherlands
Gravinnelaan 3, Veenendaal
LET OP: AANVRAGEN VOOR EEN BEZICHTIGING GRAAG PER MAIL, DE VERKOPEND MAKELAAR VAN BIEDEN EN WONEN GELDERSE VALLEI NEEMT DAN CONTACT MET U OP OM EEN AFSPRAAK VOOR EEN BEZICHTIGING IN TE PLANNEN.
Bieden en wonen verkoopt deze woning via een transparant biedproces.
NB. De getoonde vraagprijs is een vanaf prijs.
Welkom bij deze moderne tussenwoning aan de Gravinnelaan 3 in Veenendaal. Deze woning heeft alles wat je zoekt: 4 slaapkamers, een externe berging in de tuin, ruime woonkamer, multi-inzetbare zolderruimte en een goed onderhouden achtertuin. Ontdek hier jouw ideale thuis!
Buurt:
In de gezellige buurt de Pol in Veenendaal vind je deze woning. De omgeving biedt tal van voorzieningen, waaronder supermarkten op loopafstand, diverse sportclubs voor jong en oud, de grote speeltuin de Pol en de Rehobotschool (basisschool). Met uitstekende bereikbaarheid via openbaar vervoer en nabijheid van belangrijke uitvalswegen zoals de A12, geniet je hier van het beste van stedelijk wonen en rustigere buitenwijken.
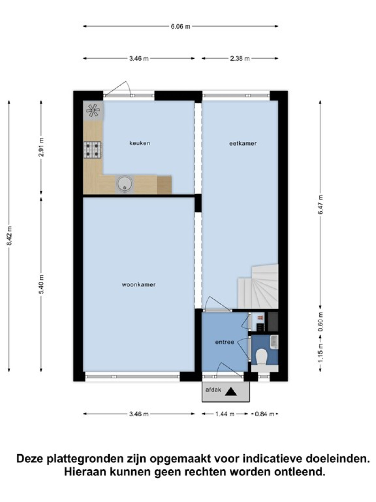
Begane grond:
Bij binnenkomst door de voortuin betreed je een knusse hal. Hier vind je een separate toiletruimte en de meterkast. De betegelde toiletruimte is uitgerust met een zwevend toilet en wastafel. Via een deur kom je in de ruime woonkamer met een open indeling, perfect voor het creëren van een royale zithoek en eetkamer. De aangrenzende keuken is compleet uitgerust met inbouwapparatuur, een gasfornuis, combi oven, koelkast, vaatwasser en veel opbergruimte.
Eerste verdieping:
Op deze verdieping bevinden zich 3 slaapkamers en een badkamer. De slaapkamers zijn ruim en goed onderhouden, elk met voldoende daglicht en voorzien van vloerbedekking. Eén slaapkamer heeft een ingebouwde kastruimte. Verder bieden ze voldoende ruimte voor het plaatsen van een bed en bureau of opbergmeubel.
De knusse badkamer grenst aan de overloop en is compleet met een ruime douchecabine, ligbad, wastafel met spiegel en zwevend toilet.
Tweede verdieping:
De trap leidt naar de 2e verdieping, waar nog een ruime slaapkamer en een multi-inzetbare overloop te vinden zijn. De slaapkamer biedt veel ruimte en slimme opbergmogelijkheden dankzij de knieschotkasten. De slaapkamer bevindt zich in de punt van het dak, maar dit belemmert de stahoogte niet.
Buitenruimte:
Geniet van de ruime achtertuin, bestraat en onderhoudsarm, maar toch groen dankzij de aanwezigheid van veel planten en begroeiing. Een berging biedt ruimte voor fietsen en tuingereedschap. Op warme dagen zorgt een elektrisch zonnescherm voor schaduw op het terras. De tuin is toegankelijk via een poort.
Bijzonderheden:
- Airco op eerste verdieping
- Rolluiken achterzijde
- Moderne tussenwoning
- 4 slaapkamers
- Externe berging in de tuin
- Ruime woonkamer
- Multi-inzetbare zolderruimte
- Nabij speeltuin de Pol
- De Rehobotschool op loopafstand
- Uitstekende bereikbaarheid met openbaar vervoer en uitvalswegen zoals de A12
Bezichtigingen:
De bezichtigingen vinden plaats op afspraak. Kijkmomenten van 30/45 minuten.
Tijdens de bezichtiging zullen wij u ook uitgebreid informeren over de werking van ons Online-biedplatform en de bijbehorende aandachtspunten voor deelname aan de biedronde.
Op de Bieden en Wonen website kunt u additionele informatie inzien of downloaden.
Informatie over het biedproces en eventuele bijkomende kosten wordt getoond op de website van Biedenenwonen.nl
Deze tekst is door ons kantoor met de meeste zorg samengesteld aan de hand van de door de verkoper aan ons ter hand gestelde gegevens en tekeningen. Derhalve kunnen wij geen garanties verstrekken, noch kunnen wij op enigerlei wijze eventuele aansprakelijkheid voor deze gegevens aanvaarden. Wij adviseren u om contact met ons op te nemen bij interesse in deze woning of u door een eigen makelaar te laten bijstaan.